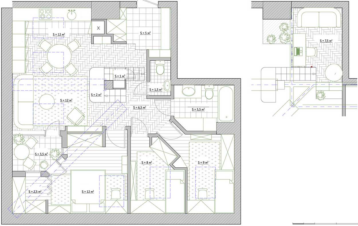
A sok ferde falsíkkal határolt, világos, 91 négyzetméteres tetőtéri lakásban hálószoba, 2 gyerekszoba, nappali, konyha, terasz, fürdő, külön mellékhelyiség és a belső lépcsőn elérhető kis külön szinten egy vendégszoba, dolgozószoba lett kiépítve. A zöld környezetben található ingatlan dekorációja természetes, világos, könnyen élhető, a növények szinte benövik a lakás tereit.

A berendezésben használt természetes anyagok, a sok fa (bútorok, falburkolatok, padló), fehér falak, világos burkolatok, természetes mintázatú tapéták, zöld növények együtt a rengeteg ablakkal egy nagyon világos, barátságos életteret hoztak létre. A tárolóhelyeket igyekeztek nagy számban és változatosan kialakítani, a normál szekrények mellett egyedi bútorokat is készítettek.
A konyhában pl. a hűtőszekrénynek egy egyedi elemet építettek, ennek konyha felé eső oldalán lett beépítve a hűtő, a nappali oldalán tálalószekrény, az előszoba felé tároló lett kialakítva. Étkezőasztal és pad választja el a konyha és nappali zónákat a nyitott térben.
A nappali a tetőtéri lakás központja, innen nyílik a terasz és vezet lépcső a felső szintre. Ügyes megoldás, hogy a TV a lépcső szerkezetében, ajtók mögött lett elhelyezve és elrejtve.
A hálószobában függönnyel választották le az egyik tárolórendszert, a másik gardróbszekrény zsalus, lamellás ajtókat kapott. A teraszra a hálószobából és a nappaliból is nyílik ajtó. Mindkét gyerekszobát azonos módon díszítették, csak apró részletekben térnek el: a tapétán az egyik szobában fák vannak csillagokkal, a másikban fák körtékkel. A fürdőszoba egy tetőablaknak köszönhetően világos, a wc környéke természetes hatású, növénymintás tapétával lett díszítve.
Lépcső vezet a második szintre, a hol a vendégszobát, dolgozószobát alakítottak ki. A lépcső alatt van egy külön mosókonyha, az előszobából egy közlekedőn közvetlenül megközelíthetőek a privát helyiségek, háló, gyerekszobák, fürdő.
Alaprajz:

további cikkek 50 és 100nm közötti lakások lakberendezése témában | lakberendezés: Architectured lakberendező stúdió


































