A dizájner egy tágas, kétszobás lakást rendezett be egy gyermekek nélkül élő házaspár számára. A feladat egy kényelmes és modern enteriőr létrehozása volt, ahol kellemesen tölthetik az időt a családtagokkal és a barátokkal. A teret úgy alakították ki, hogy mindenki jól és felszabadultan érezhesse magát. Természetes, kellemes tapintású textúrákat alkalmaztak – az eredmény egy stílusos és inspiráló élettér lett.

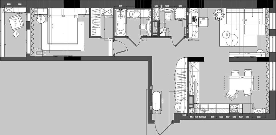
Eredetileg a lakásban két különálló helyiség volt: a konyha és a nappali, a konyhába pedig egy kis előszobából lehetett bejutni. A funkcionalitás javítása, valamint a közös családi estékhez és beszélgetésekhez ideális környezet megteremtése érdekében a tervező újragondolta a lakás használatának koncepcióját. Nagyobb átjárót nyitottak a konyha és a nappali között, az előszoba zónáját leválasztották, és rengeteg tárolóhelyet alakítottak ki.
Ez is érdekelhet: Minimális átalakítással lett tökéletes a 70m2-es, új lakás egy családnak
Az előszoba homokszínű árnyalatokat kapott; a kopásálló falfesték matt felületet képez és lehetővé teszi a falak könnyű tisztítását. Padlóburkolatként greslapot választottak. A bejárati ajtóval egy síkban lévő fekete fal dekorvakolat borítást kapott, amely hangsúlyos elemként szolgál. Erre a nagy forgalmú területre egy sérüléseknek ellenállóbb, könnyen javítható anyagot választottak. Az íves kialakítású szekrény egyedi megrendelésre, tölgy furnér felülettel készült. Méltóságteljesen fogadja az előszobába lépő vendégeket, és a nappaliba “invitálja” őket.
Ez is érdekelhet: 70 éves polgári lakás teljes felújítása: klasszikus elegancia modern kényelemmel
Az L-alakú konyhabútor egyedi megrendelésre készült. A jobb oldalon a magas szekrények elrejtik a hűtőszekrényt, és tárolóhelyet biztosítanak a háztartási gépek számára. A bútor középső része alsó és felső szekrényelemekből áll. Ebben a zónában található a főzőlap beépített páraelszívóval, a mosogatógép és egy nagyméretű, beépített mosogatótálca ivóvízszűrővel. Balról a bútoregyüttest egy beépített gépekkel – többek között mikrohullámú sütővel és sütővel – felszerelt magas szekrény, valamint egy, a díszes étkészlet számára kialakított, világítással ellátott vitrin zárja.
Ez is érdekelhet: Kreatív fiatal nő háromszobás otthona – kevés pénzből inspiráló, színes berendezés 70m2-en
A nappali falai meleg fehér árnyalatot kaptak, a hangsúlyos falfelületeket pedig duropolimer 3D-panelekkel emelték ki. Ezek a panelek ritmust adnak a térnek és kiemelik a belmagasságot. A nappali karakteres eleme a színes kanapé, valamint a török szőnyeg. A szőnyeg különleges geometriai formával és puha szálakkal rendelkezik, amelyek kellemes tapintásúak és otthonos hangulatot teremtenek az enteriőrben.
Ez is érdekelhet: Színes családi otthon modern, klasszikus és etnikai elemekkel, 70m2
A hálószobában egy gardróbhelyiséget alakítottak ki a tulajdonosok ruháinak és cipőinek tárolására. Az ágy felnyitható mechanizmussal rendelkezik, ami lehetővé teszi az ágyneműtartóban az ágyneműk és egyéb szükséges dolgok elhelyezését. Az ágy két oldalán lebegő éjjeliszekrények és egy fésülködőasztal található. A fésülködőasztalhoz tartozó puff szintén tárolót rejt.
Ez is érdekelhet: Férfias funkcionalitás, univerzális, kényelmes berendezés 70m2-es lakásban
A fürdőszobában és a WC-ben a fő hangsúlyt a trópusi mintás greslapokkal burkolt falak adják, amelyek barátságos légkört teremtenek és vonzzák a tekintetet. A betonhatású greslap háttér kiemeli a dekoratív faldíszt, a fekete szaniterek és kiegészítők pedig kontrasztot visznek a térbe.
Ez is érdekelhet: Hogyan teheted érdekessé a fürdőszobát? 7 gyönyörű tervezési ötlet
további cikkek 50 és 100n2 közötti lakások lakberendezése témában | lakberendezés: Marina Kirillova | fotók: Jurij Prokofjev
































