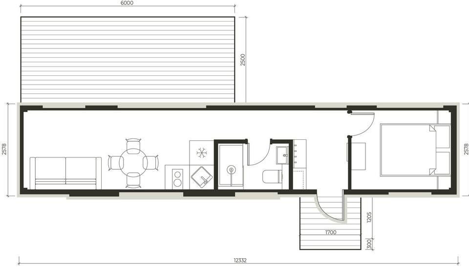
Az egyetlen fém konténerből készült, 27 m² alapterületű ház tervezésekor kulcsfontosságú célkitűzés volt egy stílusos és elegáns enteriőr létrehozása, amelyben van külön hálószoba, konyha-nappali zóna egy kisebb, önálló ételkészítésre is alkalmas konyhával.

A tulajdonos nagyon szereti a természetes fa árnyalatokat, ezért a konténert kívül-belül fával burkolták. Az enteriőrben az alapszínt a Wotan tölgy adja, amelynek mintázata a ház falpaneljein is visszaköszön. Az alapszín mellett fűzöld árnyalatok is megjelennek, stílusos és kiegyensúlyozott összhatást teremtve.
A falak burkolatához laminált rétegelt lemezt választottak, amelynek karbantartása praktikus és tisztítása egyszerű. A padlót kvarc vinyl burkolat borítja, a mennyezetet pedig matt feszített szerkezetekkel alakították ki.
Ez is érdekelhet: Nagy konténerház erdei környezetben, tölgyfa köré építve a modern, 6 szállító konténerből álló otthont
A kis sarokkonyha mini hűtőszekrénnyel, mosogatóval és kétégős főzőlappal van felszerelve. A felső szekrényekben biztosított a hely az edények tárolására. A konyhához tartozik egy ablak is, amely lehetővé teszi a szellőztetést és a munkaterület megfelelő megvilágítását.
Különös figyelmet fordítottak a bútorok és a dekoráció kiválasztására, amelyeket kávé, bézs és mokka árnyalatokban válogattak össze. Ezek a meleg tónusok otthonos légkört teremtenek, elősegítve a pihenést és a kényelmes kikapcsolódást.
Ez is érdekelhet: Szép konténerház a fák koronái közé emelve – lakóház újrahasznosított tengeri konténerekből
A csempézett fürdőszoba falra szerelt mosdószekrénnyel, háttérvilágítással ellátott ovális tükörrel és egy tágas, üvegfallal leválasztott zuhanyzóval rendelkezik. Itt szintén található egy ablak, amely gondoskodik a szellőzésről és a természetes fényről.
Ez is érdekelhet: Dizájnos, modern vidéki ház két fém tengeri szállító konténerből kialakítva
további cikkek kis lakás berendezése témában | lakberendezés: Maria Shishova | fotók: Lidija Grebenyuk






















