A lakberendező az 59m2-es tégla lakást egy aktív középkorú nő megbízásából alakította át. A tervező már a kezdetektől érezte, hogy izgalmas, eklektikus projekt lesz ebből, vintage jelleggel, mivel a kiindulópontot egy különleges, régi román szekrénysor adta.
Ennek a nagy bútordarabnak már a színe és méretei is meghatározták a dekoráció és stílus irányát, egyensúlyt teremtve az alap egy könnyed és légies színpaletta lett. A visszafogott színvilágot élénk színekkel, a lakás tulajdonosának kedvenc árnyalataival sikerült feldobni – többek között kék és kékeszöld elemekkel.

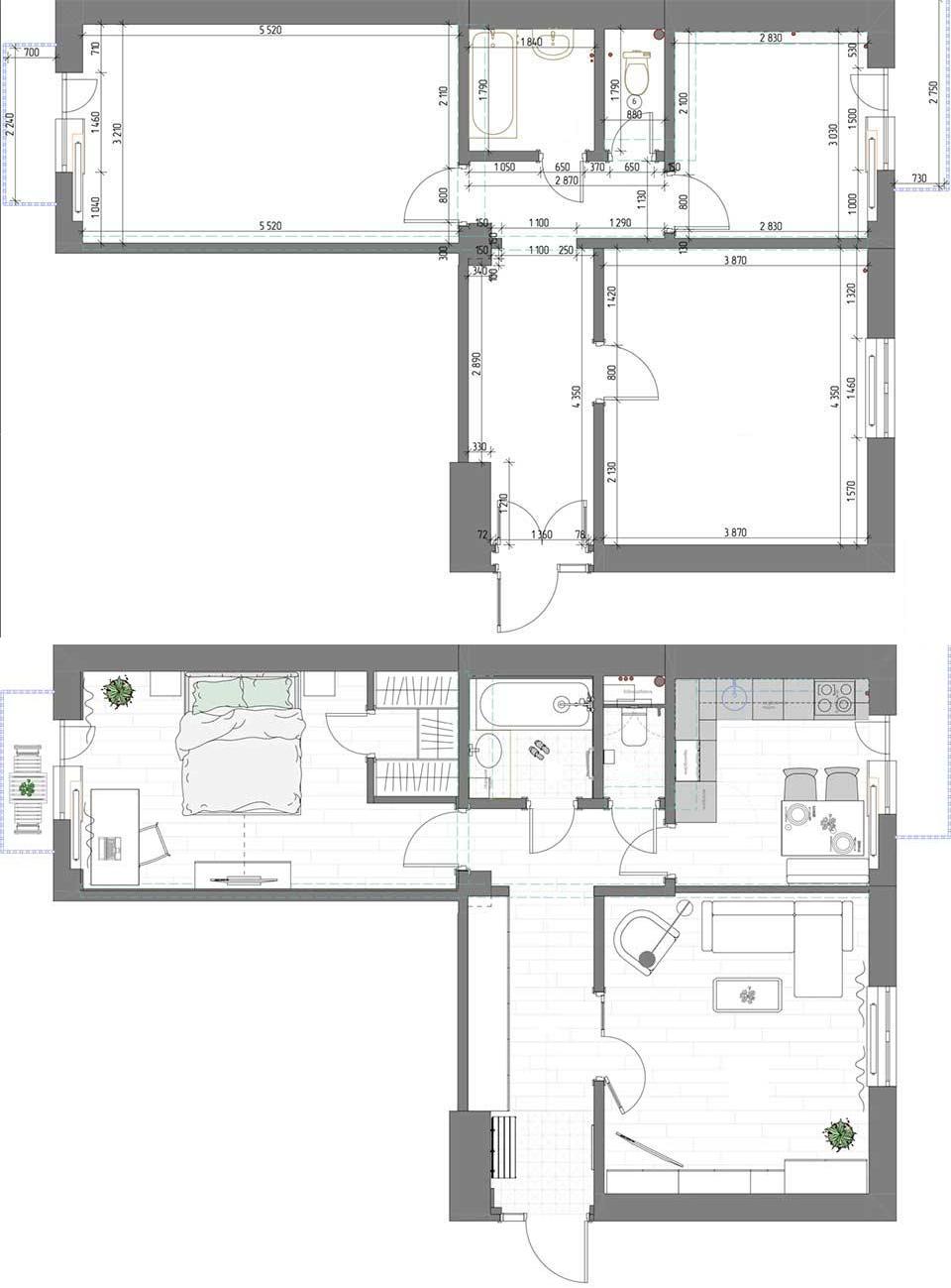
Nem volt szükség az alaprajz átalakítására: a tervező egyszerűen csak megváltoztatta a helyiségek funkcióját. A hálószobát távolabb helyezte el az előszobától, és mellé gardróbot alakított ki, ez segített kiegyensúlyozni a szoba megnyúlt geometriáját. A nappali a korábbi háló helyére került, a gáztűzhelyet pedig a lakás tulajdonosának kérésére elektromosra cserélték. Az egész enteriőr antik bútorokból állt össze, beleértve a román szekrénysort is, amelyet az ügyfél kérésére kellett beilleszteni a projektbe.
Alaprajz és a felújítást megelőző állapot:
A tervező a vintage stílust IKEA bútorokkal és kortárs alkotók munkáival kombinálta. A mindenhol fehér falak koncepcióját elvetették, helyette színes felületeket alakítottak ki a hálószobában és a konyhában. A konyhabútor frontjainak színét hosszasan válogatták: olyan árnyalatot szerettek volna találni, amely egyszerre összetett és visszafogott. Az étkezőasztal fölött egy függőlámpát helyeztek el, amely a múlt század 60-as éveinek lámpáit idézi. A hálószobát egy felújított fotellel és egy 2000-es évekbeli IKEA ággyal egészítették ki. Az ágy mézszínű furnér fejtámlája kiemeli a színes falat és a letisztult vonalakat.
további cikkek 50 és 100n2 közötti lakások lakberendezése témában | lakberendezés: Olga Tsurikova | fotók: Konsztantyin Pirjev

































