Házaspár otthonának berendezésében segített a belsőépítész, a cél egy olyan enteriőr volt, amely hosszabb távon is megőrzi aktualitását, funkcionális, kényelmes, ugyanakkor mentes a felesleges részletektől. A tervező a modern burkolatokat és felületeket klasszikus stukkókkal és díszlécekkel ötvözte, az egyedileg gyártott bútorokat pedig színes kiegészítőkkel és dekorációval tette élettelivé.
Az eredmény egy kissé eklektikus, stílusos, időtlen enteriőr lett. A megrendelők kérésére a falak mindenhol festett felületet kaptak: a választás a brit Little Greene mosható festékeire esett. Az alapkoncepció a nyugodt színek és textúrák alkalmazása volt, amelyeket jól átgondolt, hangsúlyos színfoltok törnek meg. A felhasznált anyagoknál a minőség és az egyszerűség volt a fő szempont, garantálva a tartósságot és az eleganciát.
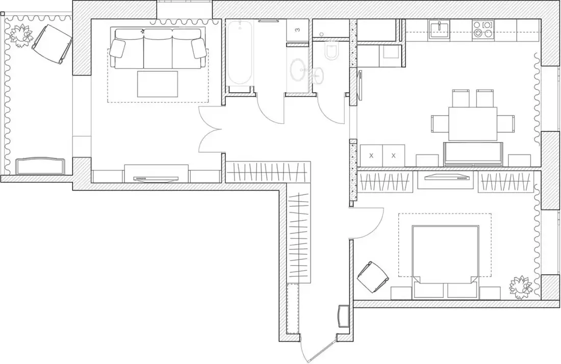
Eredeti állapot és a tér átalakítása
A lakás eredeti elrendezése egy viszonylag nagy, különálló konyhát és két szobát foglalt magában: egy tágasabb helyiséget, valamint egy kisebbet, amelyhez egy lodzsa is tartozott. A térérzet növelése és a lakás bővítése érdekében a lodzsát szigetelték, majd egybenyitották a közösségi zónával. A tervezés során fontos szempont volt, hogy a lakás adottságaként meglévő, hosszú folyosót a lehető legpraktikusabban használják ki, anélkül, hogy komolyabb alaprajzi módosításokra vagy falak bontására került volna sor.
Előszoba
Mivel a lakásban nem állt rendelkezésre külön gardrób vagy kamra, a fő tárolási zónát a hosszú előszobában alakították ki. A padlót a spanyol Vives gyár minőségi hidegburkolata fedi, míg a falak eleganciáját a Little Greene festékek és a klasszikus Ultrawood szegélylécek adják. A tér megvilágításáról a Newport lámpatestei gondoskodnak. Az asztalosműhelyben, egyedi méretre készült beépített szekrények milliméteres pontossággal illeszkednek a térbe. Itt kapott helyet a gépészeti szekrény az elektromos elosztókkal, valamint a takarítóeszközök és a tisztítószerek tárolására szolgáló rész is. Már egy év után megbánják a lakástulajdonosok ezt az öt lakberendezési megoldást
Konyha
A konyha alapterülete kellően tágas volt ahhoz, hogy egy teljes értékű étkezőt is ki lehessen alakítani étkezőasztallal, székekkel és egy kényelmes, kis kanapéval, emellett az olasz Classico Italiano elegáns vitrinjei is kényelmesen elfértek. A konyhabútor egyedileg készült, a fűtésrendszer kazánját pedig diszkréten egy speciális szekrénybe rejtették. A tárolókapacitás maximalizálása érdekében a felső szekrények egészen a mennyezetig érnek. A munkafelület megőrzése érdekében a Neff mikrohullámú sütőt a felső elemsorba integrálták, amely tökéletesen kiegészíti a márka beépített sütőjét és főzőlapját, valamint a Liebherr hűtőszekrényt. A vizesblokk minőségét a Blanco mosogatója és csaptelepe garantálja. A falakat a festés mellett a spanyol Adex csempéi védik, a padlón pedig itt is Vives burkolat található. A megfelelő fényviszonyokat a Favourite márka lámpái biztosítják.
Nappali
A közösségi tér kialakításánál is a Little Greene falfestékei adták meg az alaphangulatot. A világítástervezés során a funkció és a dizájn találkozott: a Favourite elegáns csillárja mellett az olasz Lightstar függesztékei gondoskodnak az optimális fényeloszlásról és a hangulatteremtésről, tökéletesen kiegészítve a modern és klasszikus elemeket ötvöző enteriőrt. 9 elleshető, profi ötlet egy otthonos, férfiasan elegáns, 46 négyzetméteres lakásból
Hálószoba
A hálószobában a falak nyugodt színvilágát és a belga Orac Decor elegáns díszléceit a tulajdonosok saját akvarell festményei törik meg. Ezek a műalkotások kaptak helyet az ágy fejtámlája felett, és gyakorlatilag ezek határozták meg a helyiség teljes színpalettáját, személyes és intim atmoszférát teremtve. Kell-e félni a sötét falak használatától kis szobákban? Miért lehet kifejezetten előnyös?
Fürdőszoba és mellékhelyiség
A vizesblokkok kialakításánál a tartósság és a prémium megjelenés játszotta a főszerepet. A fürdőszobában a padlón Vives, a falakon pedig Adex Ceramiche és Grazia csempék találhatók, melyeket Little Greene festett felületek egészítenek ki. A tágas, egyedileg készített mosdószekrényen egy elegáns Jacob Delafon mosdókagyló kapott helyet. A kényelmet egy Riho fürdőkád biztosítja, az olasz Migliore csaptelepeivel és zuhanyrendszerével felszerelve. A tárolást a fürdőkád zónájában kialakított falfülke, valamint a mosógépet is magában foglaló, szekrényes fülke oldja meg. A különálló mellékhelyiségben egy Laufen fali WC található; itt a beépített tartály feletti teret egy egyedi gyártású szekrénnyel használták ki, amely okosan elrejti a gépészeti elemeket. A fürdőszobai világítást a Favourite lámpatestei teszik teljessé.
további cikkek 50 és 100n2 közötti lakások lakberendezése témában | lakberendezés: Irina Vinevskaya | fotók: Olga Shangina


























