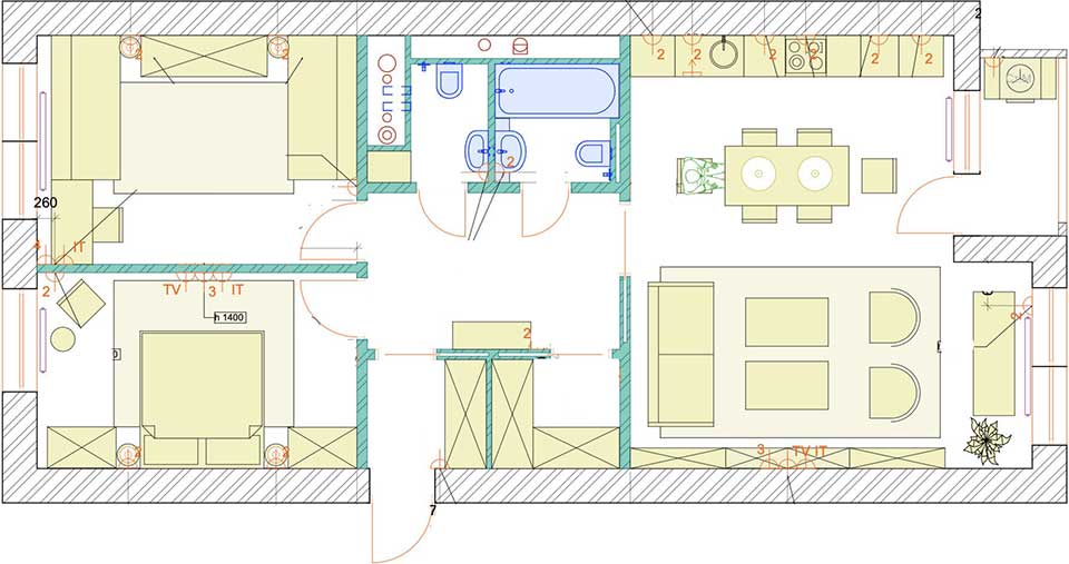
A lakás tulajdonosainak elvárásai között szerepelt egy tágas konyha, kényelmes nappali, hálószoba, gyerekszoba, valamint egy gardrób és két fürdőszoba kialakítása. A tervezők a tér minden centiméterét tudatosan hasznosították, az enteriőr pedig otthonosan elegáns modern klasszikus stílusban lett berendezve.

A lakás alaphangulatát a nyugodt, semleges színpaletta adja meg, amelyet helyiségenként egyedi, karakteres hangsúlyok élénkítenek. A nappaliban a mélykék, a hálóban a kékes-türkiz árnyalatok jelennek meg, a dekoráció eleganciáját pedig a nemes sárgaréz kiegészítők emelik. A padlóburkolat természetes amerikai dió, míg a konyha területén olyan exkluzív anyagokkal dolgoztak, mint a Palisandro márvány és a Brown Star gránit.
Ez is érdekelhet: Krémes, púderes és pasztell színárnyalatok kétgyermekes család 84m2-es, szép otthonában
A konyha és a nappali egy légtérben kapott helyet, magába foglalva az étkezőt is. Az egyik fal teljes hosszában mennyezetig érő, beépített konyhaszekrény húzódik. A fal színével megegyező frontoknak köszönhetően a bútorzat szinte láthatatlanul olvad bele a térbe, ezzel is erősítve az egységes vizuális koncepciót. A konyha maximális tárolókapacitással rendelkezik, és minden szükséges háztartási gép beépítésre került. A nappali kompakt polcrendszerét fiókos és ajtós elemekkel kombinálták. A bútorok, világítótestek és a dekoráció elrendezése a klasszikus enteriőrökre jellemző szimmetriát tükrözi.
Ez is érdekelhet: Különlegesen berendezett 84m2-es lakás boltíves átjárókkal, színes mennyezettel
A bútorok jelentős része egyedi terv alapján készült, a berendezési tárgyakat letisztult formavilág és magas funkcionalitás jellemzi. A projekt egyik legnagyobb erénye a példaértékű alaprajzi elrendezés, és a térkihasználás hatékonysága. A nappali, a közlekedő és a gardrób felé nyíló tolóajtók nagymértékben optimalizálják a térhasználatot. Bár a megbízó kérésére kezdetben néhány helyiségbe hagyományos ajtó került, utóbb maga az ügyfél is elismerte a tolóajtós megoldások nyújtotta kényelmet és praktikumot.
Ez is érdekelhet: Ez a berendezés időtálló és stílusos – modern klasszikus enteriőr család otthonában
további cikkek 50 és 100n2 közötti lakások lakberendezése témában | lakberendezés: Victoria Vlasova | fotók: Dina Alexandrova

























