A lakás tulajdonosai – fiatal házaspár két gyermekkel – olyan otthonról álmodtak, amely kényelmes bázisként szolgál dinamikus életvitelükhöz. Mivel a család szeret utazni, és a sport is központi szerepet játszik az életükben (az apa és fia teniszeznek, a kislány tornázik), az elsődleges szempont a minden családtag számára kényelmes élettér kialakítása volt, megfelelő mennyiségű tárolóhellyel. A tervező feladata egy olyan időtálló, modern enteriőr megalkotása volt, amelyben kialakítanak egy praktikus, két gyermek számára is ideális szobát, és a funkcionalitás mellett az esztétika sem szorul háttérbe.

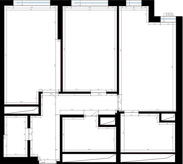
Átalakítás
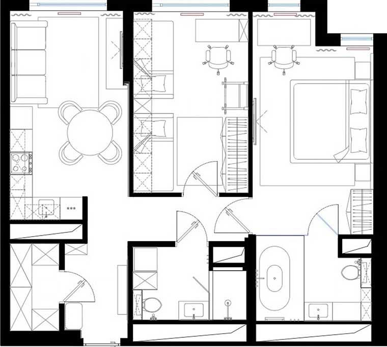
A tervezés során az eredeti alaprajzot nagyrészt megőrizték, mivel az logikus elosztást kínált: két szoba, két fürdőszoba, gardróbhelyiség és egy tágas amerikai konyhás nappali állt rendelkezésre. Ugyanakkor egy bátor és innovatív építészeti megoldással a szülői háló és a hozzá tartozó fürdőszoba közötti tömör falat okosüvegre (smart glass – kapcsolható átlátszóság) cserélték. Ez a technológia lehetővé teszi, hogy gombnyomásra opálossá váljon az üveg, intimitást biztosítva, vagy épp átlátszóvá, vizuálisan megnövelve a teret. A lakás zónázása így egyértelmű: a szülői blokk (háló és privát fürdő) elkülönül a gyerekszobától és a közösségi tértől.
Előszoba
A bejárati zónában a tárolás kulcskérdés volt: a különálló gardróbhelyiség nemcsak a kabátok és cipők, hanem a sport- és háztartási eszközök, a szezonális holmik elnyelésére is szolgál, így az előtér mindig rendezett maradhat. Belsőépítészeti finomságként jelenik meg a bejárati ajtó környezete: a falakat ugyanazzal a furnérral burkolták, mint magát az ajtólapot, így a nyílászáró szinte beleolvad a térbe, egységes és elegáns felületet képezve. A padlót itt – és a konyhai zónában is – strapabíró kerámia burkolat védi.
A gyerekek fürdőszobája: merész és praktikus
A gyerekek által használt fürdőszoba designja jóval kötetlenebb, mint amit majd a szülők fürdőjében láthatunk. A zuhanyzó kiemelt falára kisméretű, terrakotta színű, texturált csempe került, amit a zuhanyfülke másik két falán terrazzo mintás lapok egészítenek ki. A semleges alapot a világosbézs kerámia adja (Arcana Ceramica). Ez a helyiség rejti a háztartási funkciókat is: a mosó- és szárítógépet esztétikusan beépítették a szekrénybe, így azok nem zavarják a fürdő vizuális egységét.
Konyha, étkező és nappali: a közösségi élet színtere
A közösségi térben a funkciók finom egyensúlya valósul meg: a főzés, az étkezés és a pihenés zónái organikusan kapcsolódnak egymáshoz. A konyhabútor a maximális funkcionalitás jegyében készült: minden szükséges gépet beépítettek, beleértve az AEG készülékeket és egy kompakt borhűtőt is. Az étkezőben olyan neves gyártók bútorai jelennek meg, mint a Calligaris, amelyek letisztult formavilágukkal emelik az enteriőr színvonalát. A világítás tervezésekor a technikai és hangulatfényeket kombinálták: a mennyezeti sínes lámpák és beépített spotok biztosítják az általános fényt, míg a kanapé feletti falikarok és az étkezőasztal fölé belógatott dizájnlámpák (Odeon Light) a meghitt atmoszféráért felelnek.
Ez is érdekelhet: Háromszobás, 74m2-es lakás átalakítása négyfős családnak, két külön gyerekszobával
Bár a megrendelők alapvetően modern stílust kértek, a koncepciót art deco jegyekkel fűszerezték meg, ami különleges karaktert ad a térnek. A falak festettek, de a textúrák játéka mozgalmassá teszi a felületeket. A kanapé mögötti falszakaszon a fallal megegyező színű díszlécek (Orac Decor) adnak klasszikus keretet a modern bútoroknak, míg az étkezőasztal melletti falat texturált 3D panelek díszítik.
Ez is érdekelhet: Kétgyermekes család 60m2-es otthona hangulatos, időtálló berendezéssel
Gyerekszoba: játékos funkcionalitás
A két gyermek közös birodalmában a legfontosabb szempont a zónázás és a “növekvő” bútorok elve volt. A teret úgy alakították ki, hogy a különböző korú és nemű testvéreknek meglegyen a saját kuckójuk. A falakon megjelenő kézi festés – stilizált Mickey és Minnie egér figurákkal – vizuálisan is kijelöli a fiú és a lány alvóhelyét, és játékosságot vísz a térbe.
A tárolási rendszer itt is rendkívül átgondolt: a két ágy között elhelyezett bútor nemcsak elválasztó elemként funkcionál, de tárolókapacitást is biztosít. Emellett zárt ajtós szekrények, könyvespolcok és a játékok számára kialakított alsó fiókok segítik a rend megtartását. A tanuláshoz egy fiókos íróasztal áll rendelkezésre, amelyhez külön polcrendszer tartozik a tanszerek számára. Az ágyak felett, a kárpitozással harmonizáló színű függesztett szekrények további pakolófelületet kínálnak.
A lakás egységes padlóburkolata – a vizes helyiségek kivételével – meleg hatású vinyl laminált padló, amely a nappalitól a hálószobákig folytonosságot teremt.
Szülői hálószoba
A szülői hálóban az art deco hatás még erőteljesebben érvényesül. A széles, bársony kárpitozású ágyvég feletti falat egy lenyűgöző, aranyszínű hattyúkat ábrázoló tapéta díszíti, amely a helyiség fókuszpontjává válik. Ezt a luxus hatást a szemközti falon megjelenő sárgaréz profilok teszik teljessé. A tárolást egy kétszárnyú, visszafogott gardróbszekrény oldja meg. A világítást itt is réz részletekkel gazdagított függesztékek egészítik ki az ágy két oldalán.
A szülők fürdőszobája
A hálóhoz közvetlenül kapcsolódó fő fürdőszoba a lakás egyik leglátványosabb pontja, köszönhetően az üvegfalnak. A burkolatok terén a nagyméretű lapok dominálnak: a padlón és a kiemelt falon márványhatású, barna erezetes kerámia, míg a többi felületen szürke kőhatású lapok (pl. 41zero42) teremtenek elegáns kontrasztot. A tér különlegessége a szabadon álló kád fölé helyezett csillár, amely szobaszerűvé varázsolja a vizesblokkot. A tárolás itt is rejtett és praktikus: a WC-tartály feletti szekrény folytatódik a fal mentén, és kapcsolódik a mosdó alatti lebegő szekrényhez.
további cikkek 50 és 100n2 közötti lakások lakberendezése témában | lakberendezés: Daniela Vasyunina | fotók: Konstantin Pyriev

































