Ebben az 1980‑as években épült kétszobás lakásban a lakberendező ügyfelének szülei éltek. Ők ma már a városon kívül laknak, így az ingatlant – amelyre nagyon ráfért egy teljes felújítás – magának alakította át a férfi.

Az épület sok eleme beton, ami korlátozta az átalakítási lehetőségeket. Ennek ellenére szükség volt az alaprajz módosítására, mert a lakás sötét volt, kényelmetlen előszobával és felesleges kamrával.
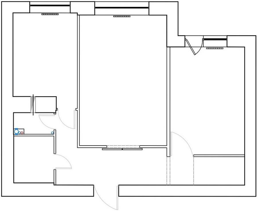
Így nézett ki a lakás a felújítás előtt:
A tervező azt javasolta, hogy az előszoba-folyosót csatolják a nappalihoz, a konyha bejáratát helyezzék át a folyosóról a nappaliba (a gáztűzhely miatt az ajtó megmaradt), továbbá szüntessék meg a hálószobával szomszédos kamrát, ezzel bővítve a helyiséget. A fürdőt és a WC-t egyesítették.
Fontos szempont volt, hogy praktikus, könnyen tisztán tartható anyagokkal dolgozzanak a felújítás során. A falakat mosható festékkel festették, a padlóra strapabíró laminált burkolat került, a mennyezethez pedig feszített fóliát alkalmaztak. Az előszobában a kabáttartóval ellátott falszakaszt vinyllel burkolták, amely ellenáll a víznek és a szennyeződésnek.
A tervező átgondolt, jól kihasználható tárolórendszereket alakított ki. Az előszobában a fürdő ajtaját is magába foglaló teljes falon beépített szekrény és felső tároló található, ide kerül a ruházat, technikai eszközök és szezonális tárgyak. Egy másik szekrény a hálószobában kapott helyet.
A bútorok a tervező rajzai alapján egyedileg készültek. Egyes darabok kifejezetten műtárgy jellegűek, például a bordázott, borvörös fronttal rendelkező konzolasztal.
Feladat volt a folyosóról a konyhába futó gázcső elrejtése is. Ehhez bútor- és gipszkarton dobozokat terveztek (alulról hozzáféréssel), a konyhai függőleges csövet pedig egy kivehető polc rejti. Így a cső továbbra is hozzáférhető, de vizuálisan nem zavarja a teret. (Fontos: a gázszolgáltató nem minden esetben engedélyezi a cső elburkolását, ezt mindig előre tisztázni kell.)
A konyhában a lineáris konyhabútor minden szükséges gépet befogad, beleértve a mosogatógépet is. Itt kapott helyet a mosógép is. A hűtőt beépítették abba a fülkébe, amely a korábbi alaprajzi módosítás után keletkezett – régen itt volt a konyha bejárata a folyosóról.
Mivel a belmagasság mindössze 2,5 m, a tervező optikailag igyekezett növelni azt a burkolatok segítségével. Ebben segítettek a függőleges csíkozások: nemcsak a fürdőben, hanem a hálószoba ágyvégi falfestésében, a nappali kanapé melletti falon lévő stukkóban, a konyha étkező zónájának élénk csíkos falfestésében, valamint az ajtólapok felületén is megjelennek.
Általános világításként süllyesztett spotlámpák szolgálnak. Kiegészítő fényforrások: fali karok az ágy két oldalán, a kanapé mögötti falon és a konzolasztal fölött. A konyhában függeszték az étkezőasztal fölé, valamint munkalap-megvilágítást is beépítettek a praktikus főzéshez és a bensőséges hangulat megteremtéséhez. A fürdőben a tükör és a kád előlapja kapott megvilágítást.
A fürdőszobában nagy formátumú, kőhatású, meleg szürke csempét használtak, a mosdó feletti falfelületet pedig fehér, függőlegesen csíkos, domború csempe emeli ki. A tároláshoz beépített háztartási szekrényt és mosdó alatti szekrényt terveztek.
további cikkek 50 és 100n2 közötti lakások lakberendezése témában | lakberendezés: Andželika Gyacsenko | fotók: Alekszandr Klevcov



































