Gyermekes családnak rendezett be modern enteriőrt a tervező. A megrendelők határozott elképzelésekkel érkeztek: sok természetes fényt és egy többfunkciós konyha-nappali kialakítását szerették volna vidám, barátságos hangulattal. Még a házaspár hatéves kislánya is aktívan részt vett a saját szobája megtervezésében.
.
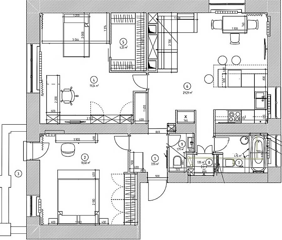
Az átalakítás során a tervező egybefüggő konyha-nappalit alakított ki, amely végül a családi élet központi helyszínévé vált. Az átalakítás nem merült ki a falak elbontásában: a gázellátást elektromos rendszerre cserélték. A fürdőszoba egyik falát át kellett helyezni ahhoz, hogy a vizesblokknak kijelölt területen fürdőszoba (szabadon álló káddal), külön zuhanyzó és külön WC is helyet kapjon. A lakás alapterülete 81 négyzetméter.
Az előszobába választott Wallquest tapéta már a designkoncepció jóváhagyásának szakaszában elnyerte a tulajdonosok tetszését, már a belépéskor meghatározza az enteriőr hangulatát. A padlóburkolathoz itt, akárcsak a lakás többi részében, terrazzo mintázatú kerámia burkolatot választottak, amely a választott stílushoz tökéletesen illeszkedik. A Pamesa Doria Multi kollekciója a projekt teljes színpalettáját magában foglalja. A poros szürke árnyalatú puff és a csepp formájú tükrök tovább erősítik a természetesség és a letisztultság témáját.
A lakás nyitott, többfunkciós terei megkövetelték a zónák precíz kialakítását és a vizuális letisztultságot. A lakberendező szinte minden tárolórendszert elrejtett, azok homlokzata színben megegyezik a falakkal. Az enteriőrbe áttetsző kivitelben készült bútordarabokat is választottak, hogy a karakteres színek, minták és műtárgyak harmonikusan jelenhessenek meg egymás mellett.
A lakás hangulatát egyedi, kézműves tárgyak formálták, amelyek karakteressé és személyessé tették az enteriőrt. Különleges részletként jelentek meg a festmények, valamint a kerámiák. a nappaliban nem zárták el a falban lévő szellőzőrendszer oldalain lévő fülkéket – aszimmetrikus polcokat építettek beléjük dekorációs kiegészítőknek.
A tulajdonosok kislányának tágas, a nagy belmagasságot is ötletesen kihasználó hálószobájában szokatlan színpárosítás adja meg a fő hangulatot: a mély limezöld árnyalat égkék színnel találkozik. A Scion tapéta jól közvetíti a helyiség játékos, kreatív légkörét.
Az enteriőr palettája könnyed, friss és légies. Az alapot három fő szín adja: világosszürke, kék és fűzöld, ezek a színek helyiségről helyiségre változó arányban jelennek meg. A gyerekszobában jelenik meg a lime árnyalat. „Tudatosan elhagytuk a klasszikus színeket – például a rózsaszínt és annak árnyalatait. A lime mellett döntöttünk, mert sokoldalú, bármilyen életkorhoz jól illeszkedik, pontosan tükrözi a szoba kis lakójának személyiségét, és nem ütközik a lakás általános stílusával” – magyarázza a választást a tervező.
A fő fürdőszoba egyedi eleme lett a csíkos York tapéta, amely lehetővé tette, hogy a tervezők kiemeljék a helyiség egyik legfőbb előnyét: a saját ablakot.
további cikkek 50 és 100n2 közötti lakások lakberendezése témában | lakberendezés: Tatyana Otic | fotók: Arszenyij Ignatov
































