Az 50 négyzetméteres lakásba azonnal beleszeretett a hölgy: a kiváló fekvés pazar kilátással és az átalakításban rejlő potenciál mind az ingatlan mellett szóltak. Az izgalmas közös munka során a lakberendező szinte a teljes belső teret újraalkotta.
Az enteriőr színhasználata rendkívül gazdag: a finom, nőies rózsaszín mellett megjelenik a mély, nyugodt kék, a ragyogó smaragdzöld, valamint a lila és bordó árnyalatok is izgalmas akcentusként vannak jelen. Mivel a tulajdonos érdeklődik a pszichológia iránt, kiemelt szempont volt egy olyan színpaletta összeállítása, amely harmonikus és a relaxálást segítő légkört teremt.

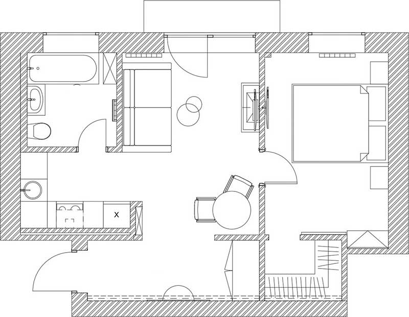
A koncepció szerint a fürdőszoba sokkal nagyobb szerepet kapott mint a konyha, mert a tulajdonos hölgy ritkán főz, az ablakos fürdő gondolata viszont rendkívül csábító volt. Az áttervezés során a fürdőszoba így egy ablakos helyiségbe került, a kompakt konyhabútort pedig egy erre a célra kialakított fülkébe rejtették: bár a tulajdonos ritkán használja, ez a kis konyhasarok minden alapvető funkcióval rendelkezik.
A falfelületek uralkodó színeit a Little Greene festékgyártó finom, púderes palettájáról választották. A térérzet növelése érdekében a tervező tudatosan bánt a tükrökkel: a konyhában például néhány felső szekrényt tükörfelülettel helyettesített. Az előszobában, a franciaablakkal szemben egy teljes falfelületet beborító tükör kapott helyet. Ez az optikai játék megduplázza a nappali méretét, egy újabb szoba illúzióját keltve.
A nappaliban az erkély parapet falát megszüntetve padlótól mennyezetig érő franciaablakokat építettek be. Ennek köszönhetően a tér vizuálisan kitágult, fénnyel telt meg, és lenyűgöző városi panoráma tárult a lakó elé. A helyiségben a tulajdonos kérésére egy biokandallót is elhelyeztek.
A tulajdonos egy vibráló, személyiségét hűen tükröző otthonra vágyott. „A púderes rózsaszín árnyalatok, a légies római roló és a padló hűvös szürkéjének kontrasztja egyszerre kölcsönöz nőies és kifinomultan elegáns karaktert a térnek” – foglalja össze a lakberendező.
A hálószobából külön gardróbhelyiség nyílik, amely a ruhák és személyes tárgyak tárolásának központi helye.
A dekorációs tárgyak egy része a tulajdonos korábbi otthonából érkezett. A nappali nagy festménye tökéletesen összefogja a tér színvilágát, a finom porcelán balerinák pedig a tulajdonos törékeny, nőies oldalát idézik. A textíliákat, így a függönyöket is egyedileg készítették. A személyes hangulatot tovább erősítik a világ különböző pontjairól származó kiegészítők: a hálószoba és az előszoba bútorfogantyúit a tervező az Egyesült Államokból rendelte, az antik mentazöld váza Olaszországból, a nappali fekete-fehér grafikája pedig Grúziából került az enteriőrbe.
A fürdőszoba falaira Sanderson festéket választottak, míg a vizes zónákat nagyméretű Marazzi greslapokkal burkolták.
további cikkek 50 és 100n2 közötti lakások lakberendezése témában | lakberendezés: Ksenia Mezentseva | fotók: Sergey Krasyuk






























