A tervezés fókuszában egy gyermekes család igényei álltak, akik számára egy 54 négyzetméteres, eredetileg egyszobás lakást kellett élhetőbb, többhelyiséges otthonná alakítani. A fő célkitűzés a rendelkezésre álló tér maximális és hatékony kihasználása, valamint elegendő tárolóhely kialakítása volt. Bár a funkciók megsokszorozódtak, fontos szempont maradt, hogy az enteriőr megőrizze a könnyed térérzetet. A cél érdekében a tervezők egy világos alapot hoztak létre, amelyet határozott, vidám színű bútorokkal és művészeti alkotásokkal élénkítettek, így az összkép egyszerre lett letisztult és egyedi.
Több szoba és két gardrób a szerény alapterületen
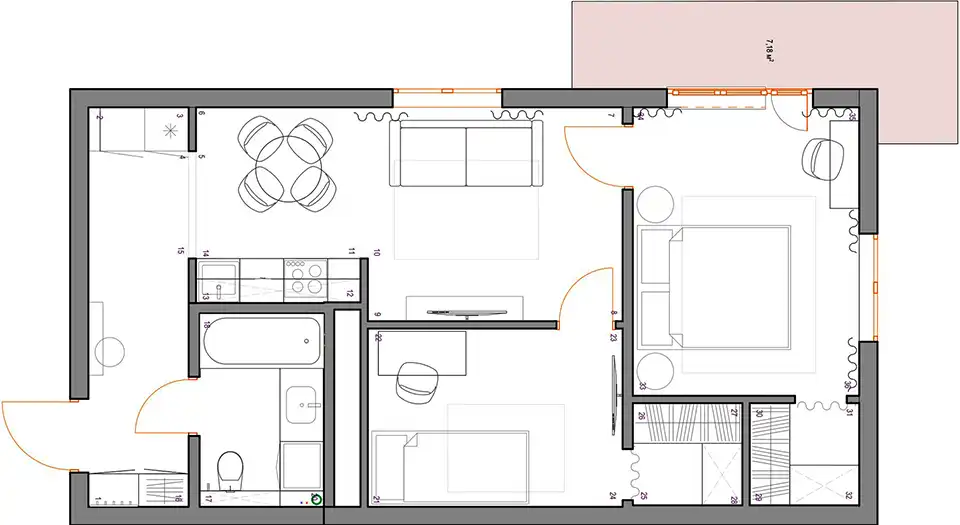
A lakás eredeti elrendezésének legnagyobb hátrányát – és egyben a lehetőséget – egy aránytalanul nagy, kihasználatlan folyosó jelentette. A legfontosabb alaprajzi beavatkozás során a konyhát ebbe a hatalmas közlekedő térbe helyezték át, ez a merész lépés lehetővé tette, hogy egy teljesen új, különálló szobát alakítsanak ki a lakásban. Mivel ez az új helyiség nem rendelkezik hagyományos, homlokzati ablakkal, a megfelelő körülmények biztosítása érdekében egy modern szellőztetőrendszert, valamint a természetes fényt beengedő bevilágító ablakot építettek be. Az átgondolt térszervezésnek köszönhetően a korábbi egyszobás ingatlanból egy nappali-konyhás, két hálószobás otthon született, amelyben ráadásul két különálló gardróbhelyiség is helyet kapott.
Előszoba
A bejárati ajtón belépve egy méretre készült, padlótól mennyezetig érő beépített szekrény fogadja az érkezőket, amely rengeteg helyet biztosít a ruháknak és a cipőknek, mindemellett pedig esztétikusan elrejti a villanyórát és a Wi-Fi routert is. Ezzel a tárolóval szemben már a konyhabútor egy kiegészítő szakasza kapott helyet, amelybe a beépített hűtőszekrényt és további tárolórekeszeket integráltak. A tér vizuális fénypontja – és egyben az étkezőzónából is jól látható fókuszpont – az egyik falat díszítő, metszetszerű, erdőt ábrázoló elegáns tapéta.
Konyha és nappali
Az alaprajzi módosítások következtében a konyha egy átjárható zónába került. Hogy a bútorzat ne nyomja el a teret, a fóliázott MDF frontokat a falak színével megegyező árnyalatúra fújták, így a szekrények szinte feloldódnak a környezetükben. A munkalap elegáns, kőhatású laminált bútorlapból készült, míg a hátfalat nagyméretű kerámia burkolattal védték. Mivel magas elemek elhelyezésére itt nem volt lehetőség, a hűtőszekrényt az előszobai blokkban, egy válaszfal mögött rejtették el, az evőeszköztartó fiók pedig praktikusan a főzőlap alá került.
A konyhából nyíló nappali zóna legfeltűnőbb eleme egy kényelmes, élénk terrakotta színű kanapé. A bútor lekerekített formái nemcsak esztétikusak, de egy átjárható térben különösen praktikusak is, hiszen biztonságosabbá teszik a közlekedést és segítik a helytakarékosságot.
Hálószoba
A szülők hálószobája két nagy ablakának köszönhetően valósággal fürdik a természetes fényben. A két ablak közötti kiváló fényviszonyokat kihasználva egy sminkasztalt is kialakítottak: a kontrasztos fekete, természetes rattan betéttel és praktikus kozmetikai fiókkal rendelkező konzolasztal tökéletes szépségsarkot teremt.
A világosra festett falakat az ágy mögött elegáns díszlécekkel tették izgalmasabbá. A szoba központi eleme egy 180 centiméter széles franciaágy, amelyhez izgalmas világítási terv társul: a mennyezetről egy felhőt formázó csillár ereszkedik alá, amelyet az ágytámla fölött elhelyezett két gömb alakú fali olvasólámpa egészít ki.
Egy íves kialakítású átjárón keresztül juthatunk be a szobához tartozó gardróbba, melynek bejáratát mennyezeti spotlámpák világítják meg.
Gyerekszoba
A leválasztott, új szobát a gyermek vette birtokba. A falakat finom, tyúklábmintás szövetet utánzó, lágy szürke tapétával burkolták, ami olyan meghitt, barátságos atmoszférát teremt, mintha egy bélelt ékszerdobozba lépnénk. Ezt a visszafogott hátteret kifejezetten élénk bútorokkal ellensúlyozták: az ágy és a számítógépes szék napsárga árnyalatot kapott, míg az íróasztal a nappali kanapéjának terrakotta színére rímel. Ezek a stílusos, vibráló elemek garantálják, hogy a tér egyáltalán nem hat unalmasnak. A szoba személyes és bájos részlete az ágy felett elhelyezett festmény, amely egy kutyát ábrázol.
Fürdőszoba
A mindössze 4 négyzetméteres fürdőszobában a gondos tervezésnek köszönhetően minden elfért, amire a családnak szüksége van. Kényelmes fürdőkádat építettek be, a mosó- és szárítógépet pedig egy egyedi gyártású szekrényben rejtették el. A tárolókapacitást a fali WC beépített tartálya feletti polcos elemekkel és a mosdókagyló alatti tágas fiókkal maximalizálták. A vizuális térnövelés érdekében a padlón használt nagyméretű kerámialapok megszakítás nélkül futnak fel a falakra, egységes, térbővítő hatást keltve, amit a falfelületek magasabb részein kisméretű csempékkel kombináltak.
további cikkek 50 és 100n2 közötti lakások lakberendezése témában | lakberendezés: Maria Tartashnik | fotók: Elena Mikhalina




























