A természetes kő árnyalatait és élénk, üde zöldeket kombinálva tervezett otthonos, ugyanakkor funkcionális enteriőrt fiatal nő ügyfelének a belsőépítész. Fő kívánság volt, hogy világos, szellős, pihentető teret alakítsanak ki, kényelmesen használható elosztással.

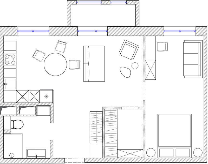
Az új lakást szabadon variálható alaprajzzal vették át. Az 56 négyzetméteren tágas előszobát, gardróbot, konyha‑nappalit, dolgozósarokkal kombinált külön hálószobát, valamint fürdőszobát alakítottak ki.
Az előszobában eltértek a hagyományos gardrób‑megoldástól: alul fiókokat alakítottak ki, a pad vonalát pedig egy díszcsíkkal vitték végig a teljes homlokzaton.
Ez is érdekelhet: Nyugodt enteriőr fa és sötét, tompa árnyalatok dominanciájával, 56m2
A nappali tér látványos eleme a karakteres zöld árnyalattal tervezett konyha lett. Nem szerették volna, hogy robusztusnak hasson, ezért lemondtak a felső szekrényekről: minden fő tárolót és gépet egy oldalra, a fal színéhez igazodó beépített bútorba rejtettek. A hátfal gazdag barna tónusú, kőhatású lapokból készült, a fölötte lévő falat pedig sziklás felületet idéző dekorvakolattal vontuk be. A színek és anyagok játéka különösen esti megvilágításban érvényesül.
Ez is érdekelhet: 56m2-en kellett 3 szoba a fiúgyermekes családnak, áttervezték és felújították a lakást
A nappali zónában lazacszínű csempe és dekorvakolat kombinációját alkalmazták. Hasonló színű a hálószobai íróasztal, míg az ágy fejvégét borító kárpit a konyhai frontokra rímel.
Ez is érdekelhet: Hogyan lett egy régi bérház 56m2-es lakása modern és stílusos – berendezés a régi hangulat megőrzésével
A fürdőszobában két markánsan eltérő anyagot társított: atervező nyers hatású, terrazzo‑mintás greslapot és az élénk narancssárga, apró méretű csempét, amellyel a zuhanyrészt emelte ki.
Dekoratőrként szeretek szokatlan megoldásokat alkalmazni. Nagyra értékeltem, hogy a megrendelő könnyedén bízta rám a tervezést, és nyitott volt a merész burkolatokra, a színek, anyagok és textúrák szokatlan párosítására.”
– mondja a projekt szerzője.
Ez is érdekelhet: Fiatal hölgy 56m2-es lakása mély, világos, lágy és semleges színek kombinációjával
további cikkek 50 és 100n2 közötti lakások lakberendezése témában | lakberendezés: Marina Zhol | fotók: Sasha Kolerikus























