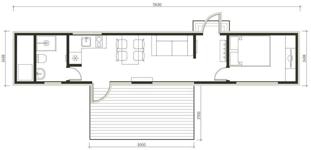
Ez a 30 m²-es, teraszos mobil konténerház önellátó megoldásokat kínál, modern kényelmi szintet biztosít, és saját alvázán szállítható. A projekt belsőépítésze világos, otthonos enteriőrt tervezett a mozgó otthonba. A megrendelő klasszikus, ugyanakkor minimalista és korszerű kialakítást kért, néhány színes kiegészítővel. A ház 2–3 fő számára biztosít lakhatást, ezért külön hálószobát, teljes értékű konyhát és plusz fekhelyet is tartalmazó nappalit kellett kialakítani.

Bár az alapterület mindössze körülbelül 30 négyzetméter, a panorámaablakok és a fehér szín hatására jóval tágasabbnak tűnik. A konyhából közvetlen kijárat nyílik a lebegő teraszra, ahol napozóágyak is elférnek. A terv műszaki helyiséget is tartalmaz, benne a gépészeti egységgel, vízmelegítővel és egy 1100 literes tisztavíz‑tartállyal.
A konyhát teljes értékű főzésre tervezték – a megrendelő szenvedélyes szakács, ezért fontos volt a teljes funkcionalitás. A sarokkonyha egyedi gyártású, marásos, zománcozott frontokkal készült. Bal oldalt magas beépített szekrény rejti a hűtőszekrényt. A munkalapba mosogató és elektromos főzőlap, fölé pedig beépített páraelszívó került. A mosogató felett vízszintes ablak gondoskodik a természetes megvilágításról és a szellőzésről. A nappaliban a kanapéval szemben egy nagy panorámaablak nyílik a tájra.
A falak burkolata háromrétegű, fenyőből készült szerkezeti panel, fehérre festve, így közelről szépen kirajzolódik a fa erezete. A panelek jól teljesítenek a mobilitás szempontjából: szállítás közben sem repednek, vagy deformálódnak. A lakótérben vinyl padló, a fürdőben terrazzo mintás gránit járólap, a falakon hatszögletű csempe, a mennyezeten pedig mindenütt feszített fólia található.
A hálószobát tengerkék textíliák és dekorelemek teszik karakteressé, az ágy 150×200 cm-es. A fő tárolórendszer két magas szekrényt és egy komódot foglal magában: a bal oldali szekrényben polcok, a jobb oldaliban akasztórúd kapott helyet.
A fürdőszobában függesztett mosdószekrény pultba süllyesztett mosdóval, tükör, beépített WC‑tartály, üvegfallal határolt zuhany, valamint függőleges törölközőszárító található. A padlófűtés mellett panorámaablak is beépítésre került, külső oldalán tükröződő bevonattal, hogy megakadályozza a belátást.
Ez a házat nem csupán lakótérnek, hanem önellátó, mozgó otthonnak tervezték. Alapvető koncepció: oda gurul, ahol a tulajdonos pihenni vágyik, vagy közelebb akar kerülni a természethez, miközben a modern komfortról sem kell lemondania.
további cikkek kis lakás berendezése témában | lakberendezés: Maria Shishova | fotók: @lidiia.grebeniuk

























