Egy 68 m²-es, háromszobás lakás született újjá egy gyermekes család új otthonaként. A lakberendező fő feladataként fogalmazták meg, hogy létrejöjjön a tökéletes egyensúly a mindenki számára kellemes, letisztult alapok és a határozott egyéniséget tükröző, egyedi dizájnmegoldások között.
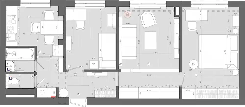
A lakás egy régebbi építésű társasházban található. Az eredeti állapot több kihívást is tartogatott az új tulajdonosok és a tervező számára: apró szobák, látható gépészeti vezetékek, vaskos mennyezeti tartógerendák és két zavaró tartópillér a konyhában. A tervezőcsapat úgy döntött, hogy komolyabb, falakat mozgató alaprajzi átalakítás helyett az eredeti adottságokat finomhangolja és igazítja a család igényeihez. A fő munka a belsőépítészeti elemekkel zajlott: a mennyezeti tartógerendákat elburkolták és finoman lekerekítve összekötötték, így azok hátrányból a tér kifejező belsőépítészeti elemeivé váltak.
Az előszobában a maximális tárolókapacitás érdekében egy nagyméretű, beépített gardróbszekrényt, valamint egy mosógépet is elrejtő háztartási szekrényt alakítottak ki. A zóna fő látványeleme egy különleges, fa gyökér talapzaton álló konzolasztal lett, amely azonnal megadja a lakás természetközeli, egyedi alaphangulatát.
A 7,6 négyzetméteres konyhában a helytakarékosság volt a legfőbb szempont, ezért a funkciókat egy keskeny mosogatógép, egy kisebb főzőlap és egy kompakt sütő beépítésével oldották meg. A bejáratnál lévő tartópilléreket a szimmetria jegyében egy elegáns, dekoratív boltívvé alakították át. Ennek peremét hangsúlyos terrakotta színűre festették, ami nemcsak mélységet ad a térnek, de vizuálisan finoman összeköti a konyhát a lakás többi pontján felbukkanó színekkel és művészi falfestésekkel is.
A nappali, amely a lakás központi helyisége, letisztult törtfehér falakat és mennyezetet kapott – akárcsak a lakás többi része. Ez a monokróm bázis nemcsak a belmagasság optikai növelésére kiváló eszköz, hanem az építészeti geometriát és a fény-árnyék játékot is gyönyörűen kiemeli. A teret a mennyezeti gerendák vonalvezetését is kihasználva két zónára osztották: egy közlekedő részre a szekrénynél és egy fő pihenőövezetre. A kettő határát egy bordázott üveggel ellátott, padlótól mennyezetig érő ovális térelválasztó jelöli ki, amely akadálytalanul átengedi a természetes fényt, mégis intim, kuckós érzetet teremt. A lounge zónában egy ággyá nyitható, extra vendégfekhelyként is szolgáló modern kanapé kapott helyet, amelyet egy sárga fotel és egy terrakotta puff tesz játékosabbá.
A hálószoba nyugodt, meghitt atmoszférát áraszt, ahol a panorámaablak mellett egy világos, kényelmes dolgozósarkot is sikerült kialakítani. A tér központjában álló letisztult vonalvezetésű franciaágy lekerekített szélű fejtámlája egyedileg, furnérozott MDF-ből készült. A szoba egyik leglátványosabb dekorációs eleme az ágy felett húzódó, terrakotta árnyalatú, egyedi, florális motívumokat ábrázoló kézi falfestés, amely határozott karaktert ad az enteriőrnek.
A gyerekszobát világos és békés, pihentető színvilág jellemzi. Az ágy mellé egy kisméretű, puha puff került, amely sokoldalúan használható: ruhák lerakóhelyeként vagy az esti meseolvasáshoz odakészített könyvek éjjeliszekrényeként is kiválóan funkcionál. Látványos belsőépítészeti megoldásként a falon egy perforált, furnérozott falpanel kapott helyet, ami melegséget és textúrát visz a térbe.
A fürdőszoba és a különálló mellékhelyiség rendkívül kompakt méretű (2,17 és 1,29 négyzetméter). Ezt az adottságot a tervező világos, modern, geometrikus mintázatú burkolatokkal ellensúlyozta, amelyek becsapják a szemet, és vizuálisan sokkal tágasabbá, frissebbé teszik ezeket a kis helyiségeket.
további cikkek 50 és 100n2 közötti lakások lakberendezése témában | lakberendezés: Anastasia Kholoptsova | fotók: Sergey Ananyev


























