Évtizedek teltek el az utolsó felújítás óta, a teljes körű átalakítás során az elavult lakás új esélyt kapott. A lakberendező visszafogott költségvetéssel olyan kortárs, mégis otthonos enteriőrt alkotott, amely a leendő lakók igényeit maximálisan kiszolgálja, kényelmes és hívogató életteret teremtve.

Az átalakítás
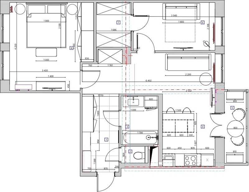
Az eredeti alaprajz – két szoba, gardrób, konyha, külön fürdő és WC, valamint egy nagy közlekedő – már nem felelt meg a mai kor elvárásainak.
Az átgondolt tervezés során a konyhát az egyik hálószoba rovására növelték meg, a gázbekötés megszüntetésével. A gardrób a hálószobából lett megközelíthető, a másik hálót pedig a gardrób egy részével tették tágasabbá. A fürdőszoba az előszoba felé terjeszkedett, így egy funkcionálisabb, kényelmesebb helyiség jött létre. Az átalakítás végeredményeként egy modern elosztású, konyha-nappalis, két külön hálószobás otthon született, megőrizve a különálló fürdőszoba és WC előnyeit.
Előszoba
A lakásba lépőt egy karakteres előszoba fogadja. A keskeny, hosszú teret optikailag és hangulatilag is formálja a merész döntés: a falakat és a mennyezetet is mélyzöldre festették. A tárolásról egy kabátoknak szánt szekrény és egy komód gondoskodik, a kényelmet pedig egy élénk színű puff szolgálja. A folyosó végében egy, az eredeti alaprajzban is meglévő fülkét tükrös tolóajtós gardróbszekrénnyel építettek be, amely nemcsak praktikussá teszi a teret, de a tükörfelületeknek köszönhetően tágítja is azt.
Konyha és étkező
Az új elrendezés szíve a konyha-étkező zóna, ahol a fő hangsúlyt az épület eredeti, homokfúvással megtisztított és védőlakkozással ellátott téglafala kapta. Ez a rusztikus felület adja meg az otthon alaphangulatát. A kompakt, lineáris konyhabútorban minden szükséges funkció helyet kapott: beépített hűtő, sütő és mosogató. A mennyezetig érő felső szekrények bőséges tárolóhelyet biztosítanak. Az étkezőasztal szerepét egy félszigetes pult vette át, amely bárpultként, étkezőhelyként és extra tárolóként is funkcionál. A zöld szín itt a hátfal csempéin köszön vissza, harmonikus egységet teremtve az előszobával.
Nappali
A nappali zóna a konyhával egy légtérben, mégis vizuálisan elkülönülve helyezkedik el. A falak alapszíne a törtfehér, amely világos és tágas érzetet kelt. A zöld akcentusszín a kanapé kárpitján jelenik meg újra, finoman összekötve a lakás különböző pontjait. A világítást itt is többféleképpen oldották meg: a spotlámpák és sínes rendszerek általános fényt biztosítanak, míg egy állólámpa a hangulatvilágításért felel.
Hálószoba
A hálószoba a pihenés és a feltöltődés színtere. A falak a kasmír puha, meleg bézs árnyalatát kapták, amely egyszerre univerzális és megnyugtató. Az ágy mögötti falrészt fekete profilokból alkotott geometrikus minta teszi hangsúlyossá. A helyiség megnövelésének köszönhetően egy tágas beépített szekrény is helyet kapott, a tárolási lehetőségeket pedig egy lebegő komód egészíti ki, amelynek konzolos része fésülködőasztalként is használható.
Fürdőszoba és WC
A fürdőszobában a fa hatású greslapok melegségét a zöld csempék frissessége és a festett falfelületek egyszerűsége egészíti ki. A WC-ben a fal mögé rejtett tartály feletti falrészen ismét megjelenik a zöld csempe, egységesítve a vizesblokkok megjelenését. A gondosan megtervezett világítás, beleértve a tükörvilágítást is, mindenhol a funkcionalitást és a kellemes atmoszférát szolgálja. Az egész lakásban, a vizesblokkok kivételével, egységes vinyl padlóburkolat biztosítja a folytonosság érzetét.
további cikkek 50 és 100n2 közötti lakások lakberendezése témában | lakberendezés: Julia Volkova | fotók: Daniel Kovalchuk

























