A kétszobást lakást egy aktív életet élő házaspár és egyetemista lányuk számára alakította kis a lakberendező. A színpalettát és a stílust leginkább a megbízó hölgy ízlése határozta meg. Az enteriőr a modern, az art deco és a klasszikus stílusjegyek finom ötvözetével teremt egyensúlyt a funkcionalitás és az időtlen elegancia között.

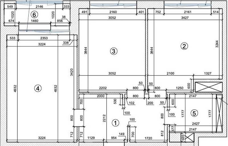
Alaprajz és a tér alakítása
Az hagyományos elosztású, kétszobás lakás alaprajzán változtattak kissé a tökéletes funkcionális rend megteremtése érdekében. Bár a két különálló hálószoba megmaradt, a fürdőszoba és az előszoba teljes újragondolása tágasabb és praktikusabb tereket eredményezett. A fürdőt a közlekedő egy részének bevonásával növelték meg, az előszobai kamrát pedig megszüntették, hogy helyet adjanak egy beépített háztartási blokknak és egy teljes értékű gardróbszekrénynek. E változtatások a konyha és a hálószoba bejáratának áthelyezését is szükségessé tették.
Ez is érdekelhet: Egyetemi tanár megújult otthona teljes felújítás után, konyhával a központban – 55m2
Az előszoba
Az előszobát alaposan átgondolta a tervező: a bejárat mellett, a szekrény oldalán fogasok vannak a kabátoknak, a cipők pedig egy egyedileg gyártott, elegáns komódbsn helyezhetők el. A közlekedő végében kapott helyet a diszkréten elrejtett háztartási blokk a mosó- és szárítógéppel, szemben pedig egy tágas gardrób nyeli el a ruhákat. A falak szürkéskék árnyalata, a díszlécek klasszikus eleganciája és a padlót borító fényes gres padlólapok egységes, harmonikus keretet adnak a helyiségnek.
Ez is érdekelhet: Stílusos, elegáns lett az 55m2-es lakás – nő kétszobás otthona
A konyha
A konyhát a letisztult esztétika jegyében tervezték. A konyhabútor két fő zónára tagolódik: az egyik oldalon a munkafelületet magába foglaló alsó és felső szekrénysor található modern beépített gépekkel – főzőlappal, sütővel, mosogatóval és mosogatógéppel. Ezzel szemben magas szekrényelemek rejtik a hűtőt, a mikrohullámú sütőt és a borhűtőt. A padlón különleges látványelem a különböző tónusú greslapokból és sárgaréz betétekből kirakott, szőnyeget imitáló minta, amely egyedi karaktert és kifinomultságot kölcsönöz a térnek.
Ez is érdekelhet: Szép konyha dizájn és tapéták fiatal nő 55m2-es otthonában
A szülői hálószoba
A szülők hálója a bézs árnyalatoknak és a természetes fénynek köszönhetően a nyugalom és a feltöltődés színtere. A padlót szalagparketta és szőnyeg borítja, a falakat pedig klasszikus díszlécek teszik elegánssá. A tárolási igényeket az ablakkal szemközti fal teljes hosszában végigfutó, beépített szekrény elégíti ki, amelynek üvegajtós részei könyvek és dísztárgyak otthonául szolgálnak. Az ágy két oldalán egy éjjeliszekrény és egy fésülködőasztal teremt finom aszimmetriát. A hálószobához csatlakozó erkélyt puha falpanelekkel és kényelmes bútorokkal egész évben használható pihenőhellyé alakították.
Ez is érdekelhet: Harmonikus színvilág, semmi felesleges: modern dizájn régi bérházban, 55 m²-en
Az ifjú hölgy birodalma
Az orvosi egyetemista lány szobája egy multifunkcionális tér, amely egyszerre szolgálja a tanulást és a pihenést. A ruhák tárolására egy olyan gardróbszekrény szolgál, amelynek nyitott polcos része könyvespolcként is funkcionál. A praktikus íróasztal mellett egy fali szekrény kínál további tárolóhelyet a tankönyveknek és személyes tárgyaknak. A szoba hangulatát a szülői hálóhoz hasonlóan a meleg bézs falszín és a természetes fa padló határozza meg, az éjjeliszekrényt pedig itt is egy kecses fésülködőasztal helyettesíti.
Ez is érdekelhet: Hogyan fért el tökéletesen egy négytagú család 47m2-en – igényes, modern kialakítással
A fürdőszoba
A megnövelt alapterületű fürdőszoba egy kis otthoni wellness-szentély benyomását kelti. A falakon a nagyméretű, kőhatású greslapok és a hozzájuk illő mozaikbetétek játéka teremt luxus hatást. A mosdó alatti szekrény bőséges tárolóhelyet kínál, a kád mellett pedig egy épített fülkébe kerülhetnek a piperecikkek. A tervezői leleményességnek köszönhetően a fali WC tartálya feletti szekrényke a vízmelegítőt is elrejti, így a látvány makulátlanul egységes és rendezett marad.
Ez is érdekelhet: Budoár hangulat egy különleges lakásban – a színek érzékisége 55m2-en
további cikkek 50 és 100n2 közötti lakások lakberendezése témában | lakberendezés: Anna Khomitskaya | fotók: Evgeny Kulibaba































