Egy új lakóparkban vásárolt, alap burkolatokkal ellátott lakást kellett gyorsan és költséghatékonyan berendezni. A tulajdonos hölgy csak a szín preferenciákat adta meg, a tervező ezeket figyelembe véve az egyszerű, praktikus és tartós megoldásokra koncentrált.

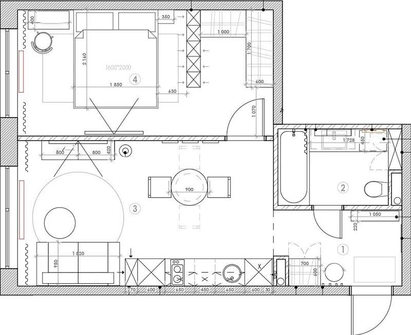
A korlátozott költségvetéshez igazodva az alaprajzon nem változtattak: a falak és az ajtók elhelyezkedése az eredeti maradt. A lakásban egy konyha-nappali, előszoba, hálószoba és egy, a WC-t is magában foglaló fürdőszoba található. A szobák laminált padlóját és a fürdőszobai kerámia burkolatokat, ahogyan a szaniterek egy részét is, megtartották.
A szobákban a falakat festhető tapétával fedték, mindenhol ugyanazt a szabványos elefántcsont árnyalatot használva. Az előszobát dekoratív homlokzati glettel díszítették, és sötét olíva színűre festették. Ezt az anyagot a rendkívüli strapabírása miatt választották, mivel közösségi terekbe és kültérre tervezték. Ellenáll a hőmérséklet-ingadozásoknak, ami egy lakásban is tartóssá és strapabíróvá teszi. Az anyagköltség kedvező – az előszobához mindössze két zsákra volt szükség. A szín szükség esetén bármikor könnyedén frissíthető.
A konyha-nappalit világítással és fal dekorációjával tagolták funkcionális zónákra. A bútorok elrendezése egyértelműen kijelöli a főzés-étkezés és a pihenés területeit. Az étkezőt az asztal fölé alacsonyan belógatott csillár és a tükrök hangsúlyozzák. A konyhabútor a többi berendezéshez képest nagyobb költséget jelentett, ez egyedileg, a tervező vázlatai alapján készült. A bútor utolsó eleme a nappali felé néz, és könyvespolc funkciót kapott.
A kanapé feletti festmény minden olyan árnyalatot felvonultat, amely az enteriőr színhasználatában megtalálható.
A hálószobában külön gardrób zónát alakítottak ki. Itt is ugyanazokat a térszervezési elveket alkalmazták: zónánként eltérő világítás, a bútorok csoportosítása és faldekoráció. Különös figyelmet fordítottak a textíliákra. A függöny anyagát költséghatékonyan, maradék anyagokból válogatták, de a hangsúlyt a természetes alapanyagokra – mint a len és a pamut – helyezték. A hálószobai sötétítő függöny két rétegű, áttört hímzéssel díszített pamutvászonból készült, ami rétegzettséget és gazdag textúrát ad. Ezzel a megoldással nemcsak spóroltak, de a természetes anyagok eleganciáját is becsempészték a projektbe.
A hálószobai TV-zóna falpaneljeinek ötlete spontán merült fel a projekt vége felé – korábban posztereket terveztek oda. A keretekbe feszített szövetre fényképeket lehet tűzni, ami egyszerre több funkciót is betölt: zónáz, dekorál és személyessé teszi a teret.
A fürdőszoba elrendezése és a burkolatok – fehér csempe a falakon és szürke kerámia a padlón – már adottak voltak. Az összes csaptelepet lecserélték, a kád előlapját pedig a projekt árnyalataihoz illeszkedő, finom mintás kerámialappal burkolták. A hosszú és kényelmes pult alá került a mosógép és egy tárolószekrény a kellékeknek és törölközőknek. A törölközőszárító elektromos. A falba süllyesztett WC-tartály felett egy púderrózsaszín árnyalatú, laminált bútorlapból készült szekrény található, amely a gépészetet is elrejti.
további cikkek kis lakás berendezése témában | lakberendezés: Anna Danilova | fotók: Natalia Vershinina




























