A régi építésű, belvárosi társasházban található, mindössze 54 m²-es lakás teljes felújításon esett át. A lakberendező egy olyan házaspár számára alakította ki az enteriőrt, akiknek a gyermekei már felnőttek és kirepültek, így kisebb lakás is bőven megfelelt az igényeiknek. Bár az alapterület nem nagy, a végeredmény egy rendkívül kényelmes és funkcionális otthon lett.
A térszervezés egyik legfőbb érdekessége, hogy hagyományos, épített válaszfalak helyett a helyiségeket sok helyen bonyolult, hátukkal egymásnak fordított egyedi beépített bútorok választják el egymástól, amivel jelentős teret sikerült megtakarítani. Az egész lakásra jellemző az egyedi tervek alapján, asztalosműhelyben méretre készült, bőséges tárolórendszerek jelenléte.
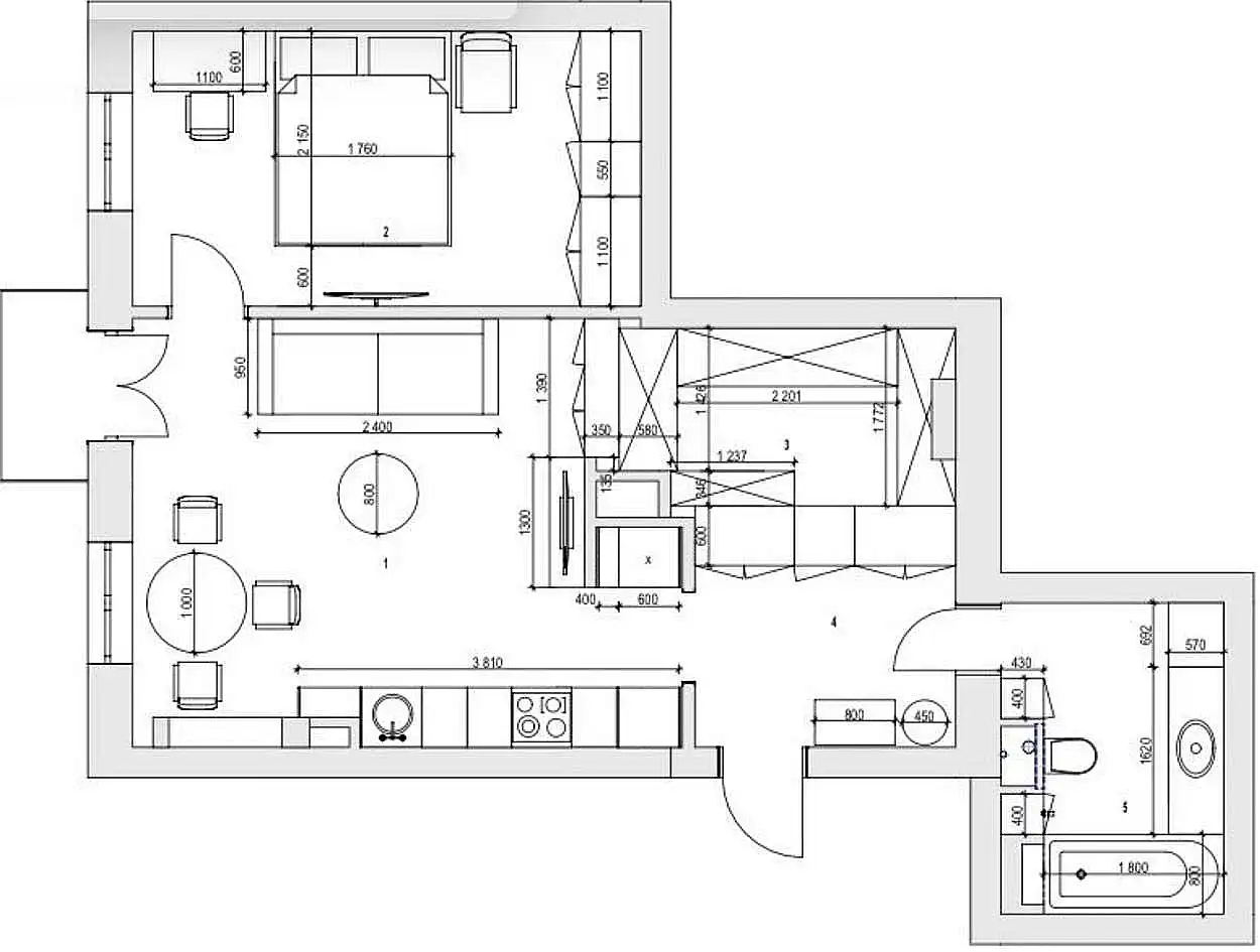
Eredeti állapot és térszervezés
Az eredeti elrendezés szerint a lakásban egy hosszan elnyúló, különálló konyha, egy hatalmas előszoba és egy nappali kapott helyet. Az alapos átalakítás során a konyhát és a nappalit egybenyitották, kialakítottak egy különálló hálószobát, a korábbi indokolatlanul nagy előszoba helyén pedig egy tágas, önálló gardróbhelyiséget hoztak létre. A vizesblokkok az eredeti helyükön maradtak.
A felújítás előtt készült képek:
Az átdolgozott alaprajz:
Előszoba és gardrób
Az előszobába lépve rögtön a lakás legmeghatározóbb, különleges eleganciát sugárzó látványeleme, egy lenyűgöző aranyozott mennyezet fogadja az érkezőt. Ezt a luxushatást a padlóburkolat is harmonikusan kiegészíti: a tervező egyedi vázlatai alapján háromféle greslapból egy visszafogott, mégis aprólékos és bonyolult mintázatú burkolatot raktak le. Az előszobából nyíló új, rendkívül tágas gardróbhelyiségben szintén ez a praktikus kerámia padlóburkolat folytatódik. A falakon – ahogy a lakás többi részén is – könnyen mosható, félmatt falfestéket és gipszstukkókat, díszléceket alkalmaztak. Utóbbiakból azért esett a választás a gipszre, mert így bármilyen egyedi méret és forma kompromisszumok nélkül megvalósítható volt.
Konyha
A nyitott térbe integrált konyha a lakás méreteihez képest kifejezetten tágas és maximálisan funkcionális. A letisztult frontok mögött beépített hűtőszekrény, mosogatógép, sütő és mikrohullámú sütő is helyet kapott, amit egy praktikus, kihúzható élelmiszertároló toronyszekrény és rengeteg fiókos elem egészít ki.
Nappali és étkező
A konyhához szervesen kapcsolódó nappali-étkező zónában a bútorok – köztük a kanapé, a székek és a pad – mind egyedi méretre készült darabok. Az étkezőasztal egy interneten talált, vintage stílusú prototípus alapján készült az asztalosműhelyben. A világítástervezés során megfizethető, de rendkívül látványos modellekre esett a választás: az étkezőasztal fölé például egy neves amerikai dizájner elegáns lámpakompozíciója került.
Hálószoba
A teljes értékű hálószobában egy kényelmes dolgozósarkot is kialakítottak, a bútorozást pedig itt is maradéktalanul egyedi asztalosmunkák alkotják. A falakon izgalmas textúrát adnak a gipsz díszlécek közé ragasztott, természetes abakafűből készült tapétabetétek. A szoba különleges dísze egy hosszas keresgélés után talált, 1970-es évekbeli, jégvirágos muránói üvegből készült, finom szirmokat formázó vintage olasz csillár.
Fürdőszoba
A fürdőszoba a lakás alapterületéhez képest meglepően nagyméretű. Kényelmesen elfért benne egy 180×80 centiméteres fürdőkád, amely körül a falakat nagyméretű, olasz greslapokkal burkolták, míg a többi falfelületen a lakásban végigfutó gipszstukkók és a félmatt festék köszönnek vissza. A szintén kerámiaburkolatos térben bőséges, beépített tárolóhelyet alakítottak ki a tisztítószereknek, kozmetikumoknak és a takarítóeszközöknek. A tervezés praktikusságát dicséri, hogy egy rejtett mosókonyha-funkciót is sikerült integrálni: a mosó- és szárítógépet egy elegáns, magas beépített szekrénybe rejtették.
további cikkek 50 és 100n2 közötti lakások lakberendezése témában | lakberendezés: POSHINTERIORS | fotók: Anton Likhtarovich






















