Ez a hetven négyzetméteres otthon nem csupán lakótér, hanem egy belső utazás helyszíne. A tulajdonosok az egzotikus tájak iránti vonzalmukat nem a szokványos szuvenírek halmozásával, hanem az érzékszervekre ható textúrákkal és hangulatokkal kívánták megidézni. A lágy fények a fa felületeken táncolnak, a falakat díszítő egyedi motívumok pedig a szavannák fűszálainak ritmusát és az ősi tradíciókat követik. Az afrikai jegyek nem tolakodóak, inkább olyan finoman szövik át a teret, mint a forró szél suttogása.
A koncepció és a megbízás
A projekt kiindulópontja egy gyermekes házaspár megbízása volt, akik a szűkös költségvetés ellenére nem egy steril lakásra, hanem egy stílusos, élhető térre vágytak, amely a funkcionális igényeket ötvözi a művészi önkifejezéssel. A cél egy olyan harmonikus környezet megteremtése volt, ahol a praktikum találkozik a „messzi tájak” ihlette, meleg atmoszférával.

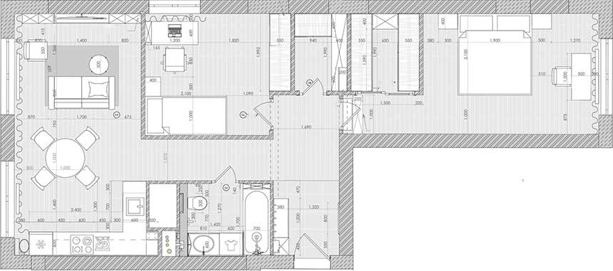
Térszervezés és átalakítás
Az ingatlan eredetileg egy tipikus, kétszobás elosztású lakás volt, amely nem felelt meg teljesen a család igényeinek. A belsőépítész ezért radikális, de logikus alaprajzi korrekciókat hajtott végre. A felújítás során a teret úgy formálták át, hogy kialakíthatóvá vált egy második háló is, így a szülők és a gyermek külön szobákat kaphattak.
A térkihasználás maximalizálása érdekében két tágas gardróbhelyiséget rendeztek be a falakba süllyesztett fülkék segítségével, biztosítva ezzel a rendezett tárolást. A közösségi élet központját pedig a konyha és a nappali egybenyitásával hozták létre, tágasabb térérzetet biztosítva a mindennapokhoz.
Előszoba
Az előszoba központi eleme egy masszív fa alapra rögzített, szokatlan formájú tükör, amely vizuálisan összeköti a tér különböző vonalait és textúráit, egységes keretbe foglalva az enteriőrt.
Innen nyílik az egyik önálló gardróbhelyiség is. A tervező különös figyelmet fordított arra, hogy a tároló funkció ne uralja a látványt: a gardrób ajtaját egy ötletes megoldással, boltíveket ábrázoló falfestéssel maszkolták el. Ez a vizuális trükk lágyítja a nyílászáró kontúrjait, és inkább dekoratív falfelületként, semmint ajtóként érzékelteti azt.
A közösségi tér: konyha és nappali
A nappali-konyhában az egyedi tervezésű bútorok dominálnak. A gépesítés – a beépített hűtőszekrény, mosogatógép, sütő és főzőlap – klasszikus elrendezést követ, a hangsúly a felületek összhangján van. A hátfalat a munkalap színével tökéletesen harmonizáló, kőhatású kerámia burkolja, elegáns, monolit hatást keltve.
A tér egyik legpraktikusabb, rejtett megoldása a hűtőszekrény és az ablak közötti magas fülke, amelyet egy lágy esésű függöny rejt el a szemek elől. Ez a “titkos” rekesz nyel el minden olyan magas háztartási eszközt – létrát, felmosót -, amelyeknek máshol nehéz helyet találni.
Ez is érdekelhet: Színes családi otthon modern, klasszikus és etnikai elemekkel, 70m2
A nappali zónájában a dekoráció minden eleme – a különleges formájú vázák, a kézzel festett faldekoráció (múzeumi minták alapján újragondolt motívumok), az egyedi fali lámpa, a könyvek és a fonott bőrre emlékeztető szőnyeg – a tapintható luxust és a kézművességet hirdeti.
Ez is érdekelhet: Minimális átalakítással lett tökéletes a 70m2-es, új lakás egy családnak
Háló- és gyerekszoba
A tágasabb szülői hálóban az ablak melletti területet egy dolgozósaroknak dedikálták, amelyet a színek és a lokális világítás különít el finoman a pihenőzónától. Az afrikai hatás itt leheletfinom: a kontinens hangulata az egyedi falfestésen, valamint a díszpárnák formavilágán és textúráján keresztül szűrődik be. Mindkét szobába egyedi méretre gyártott ágyak kerültek a maximális helykihasználás érdekében.
Ez is érdekelhet: Különleges, 70m2-es lakás nagy belmagassággal, modern megoldásokkal Óbuda szívében
A gyerekszoba kialakításánál a rugalmasság volt a fő szempont. A beépített fülkében elhelyezett tágas szekrény bőséges tárolóhelyet kínál a játékoknak és ruháknak. A szoba hangulatát egy játékos, tigrist ábrázoló falikárpit teszi barátságossá és gyermekivé, megőrizve a lakás egységes stílusvilágát.
Fürdőszoba: textúrák játéka
A vizesblokk tervezésekor a textúrák kaptak főszerepet. A padlót természetes kőhatású kerámia borítja, míg a vízzel közvetlenül nem érintkező falfelületekre dekoratív, vízálló vakolat került, amely tapintásra a bársonyos agyagot idézi. A tárolást itt is diszkréten oldották meg: a kád alatti előlap mögött és a lebegő szekrényekben minden fürdőszobai kellék kényelmesen elfér, fenntartva a letisztult, spa-szerű összhatást.
további cikkek 50 és 100n2 közötti lakások lakberendezése témában | lakberendezés: Ekaterina Vladimirova | fotók: Olga Meleketsova




























