A városi lakóházban vásárolt ingatlanban a tervezési koncepció központi eleme a “polgári miliő” megőrzése volt, modernizált formában. Időtálló, karakteres otthon kialakítása volt a cél, amelyben az elegáns francia lakások klasszikus stílusjegyeit ötvözik a kortárs funkcionalitással. A tervező feladata egy olyan kényes egyensúly megteremtése volt, amelyben a költséghatékonyság találkozik a magas minőséggel, szigorú határidők mellett.

Térszervezés és az alaprajz átalakítása
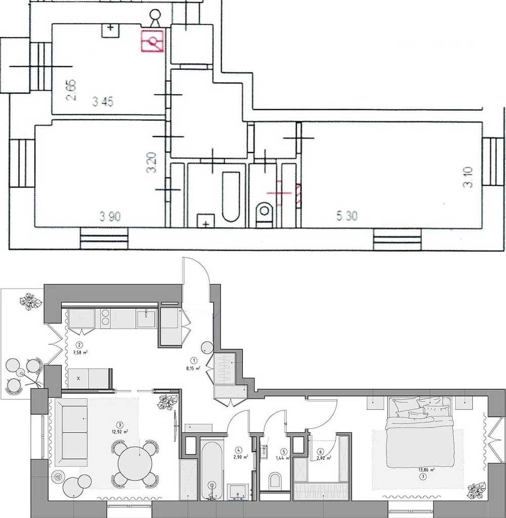
Az eredeti alaprajz jelentős korrekciókra szorult a kitűzött célok eléréséhez. A legnagyobb kihívást a gépészeti rendszerek – elektromos hálózat, vízvezetékek, szellőzés – felújítása jelentette a régi falak között úgy, hogy azok esztétikája ne sérüljön, és a szerkezet integritása is megmaradjon.
A térszervezés során az előszobában egy új falfülkét alakítottak ki a háztartási gépek számára. A társasági élet központjaként a konyhát összenyitották a nappalival, a két helyiség közé pedig elegáns, üvegezett tolóajtó került, amely biztosítja a fény áramlását, ugyanakkor szeparálhatóságot is nyújt. A háló zónájában új válaszfalak segítségével egy önálló gardróbhelyiséget hoztak létre, maximalizálva ezzel a tárolókapacitást.
Az előszobában a padlót elegáns, márványhatású greslapok borítják, amelyek tartósak és könnyen tisztíthatók. A beépített bútorok diszkréten simulnak a falakba: a bejáratnál kialakított háztartási szekrény rejti a mosógépet, míg a folyosón L-alakban elhelyezett gardróbszekrények gondoskodnak a kabátok és cipők tárolásáról. A tér praktikus kiegészítője a konzolasztal, amely a kulcsok és táskák lerakására szolgál, felette a világítást süllyesztett spotlámpák biztosítják.
A konyha alapterületéből egy részt át kellett engedni az előszobai tárolónak, így a helyiség kicsit kisebb lett. A tervező a funkciókat két zónára osztotta: az egyik oldalon kapott helyet a mosogató, a főzőlap és a sütőtorony a mikrohullámú sütővel, míg a szemközti oldalon a beépített hűtőszekrényt rejtő magas elemek sorakoznak. Az étkezőasztal a helyszűke miatt átkerült a nappaliba, így a konyha tisztán a gasztronómiai tevékenységek színtere maradt. A munkafelület mögötti falat az Equipe csempeburkolata védi és díszíti, textúrát víve a letisztult felületek közé.
A nappaliban a központi helyet az étkezőasztal foglalja el, lehetőséget teremtve a vendégfogadásra. A pihenőzónában egy kényelmes kanapé kapott helyet. A falak dekorációja a francia stílust idézi: a világos falfelületeket díszlécek keretezik, a teret pedig magas lábazati szegélyek és mennyezeti stukkók teszik teljessé. A falfülkébe épített nyitott polcrendszer könyvek és dekorációs tárgyak bemutatására szolgál. A világításról egy központi csillár gondoskodik (Lumina Deco), amely klasszikus formavilágával koronázza meg a teret, míg a falakat a Little Greene festékei öltöztetik finom árnyalatokba.
Ez is érdekelhet: Nyitott és mégis szeparált konyha? Így lett esztétikus és funkcionális az 50 m²-es lakás
A privát szféra kialakításánál a nyugalom és a funkcionalitás volt a fő szempont. A tárolást egy besétálós gardrób oldja meg, amelyben polcok, fiókok és akasztós elemek rendszerezik a ruhákat, így a hálótér mentes maradhatott a nagy szekrényektől. A franciaágy mögötti falat egy természetes hangulatú bézs tónusú tapétapanel díszíti, amely harmonizál a halszálkás lerakású vinyl padló melegségével. A hangulatvilágítást a klasszikus falikarok és a rejtett LED-megvilágítások biztosítják.
A vizesblokkban visszaköszön az előszoba anyaghasználata: a márványmintás burkolatot a vízzel nem érintkező felületeken világos falfestékkel kombinálták, ami tágasabb hatást kelt. A mosdópult alatti szekrény és a WC feletti beépítés – amely a gépészetet is rejti – bőséges helyet kínál a pipereholmiknak. A minőségi részletek itt is a tartósságot és a diszkrét eleganciát szolgálják.
további cikkek 50 és 100n2 közötti lakások lakberendezése témában | lakberendezés: Victoria Az-Zari | fotók: Yegor Vorobyov
































