A tervező egy világos és színekben gazdag enteriőrt alkotott egy házaspár és iskoláskorú gyermekük számára. A megrendelők nem féltek az élénk árnyalatoktól, így azokat bátor ecsetvonásokkal szórták szét az egész enteriőrben. A házaspár vibráló személyisége merész vizuális megoldásokra inspirálta a tervezőt.

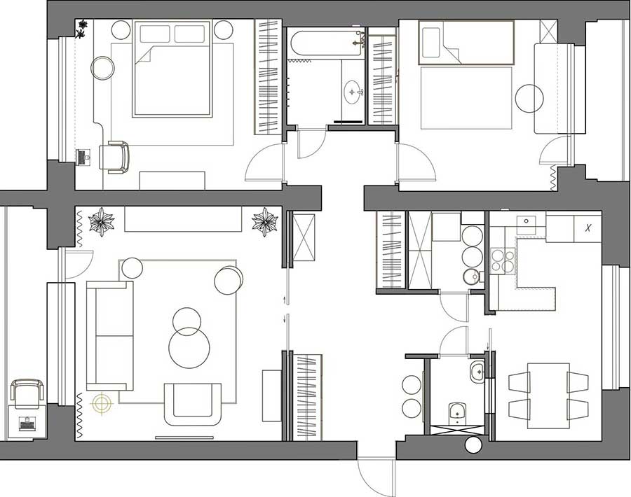
Nagyobb átalakításra nem volt szükség, mivel a tér eredeti elrendezése szerencsés volt. A megrendelők nagy ablakokat, jó állapotú parkettát, tágas szobákat örököltek. Csupán a nappaliba vezető ajtónyílást kellett csökkenteni, amelynek átalakítása lehetővé tette beépített bútorok számára kialakított fülkék és egy nagyméretű szekrény létrehozását az előszobában. A 92 négyzetméteres alapterületen két különálló hálószobát, étkezős konyhát, tágas nappalit, fürdőszobákat, külön kamra-mosókonyhát és előszobát alakítottak ki.
Ez is érdekelhet: Szülők, ötéves kislány és két cica 53m2-en, háromszobás lakásban
A élénk színekkel dolgozott az egész lakásban, még a rejtett zugokban is, ezzel egyfajta „ékszerdoboz-hatást” hozott létre. A paletta alapját kortárs művészeti alkotások és a természetben is megtalálható színkombinációk adják. Az élénk zöld, piros és kék árnyalatok energikus hangulatot teremtenek a fehér falakkal és bézs függönyökkel keretezett közösségi térben. A bordó hall köti össze a nappalit a konyhával, ahol egy rózsaszín konyhabútor és egy smaragdzöld étkezőgarnitúra kapott helyet. Az aktív színeket egy fa dohányzóasztal, letisztult formavilágú lámpatestek és különleges szőnyegek egyensúlyozzák.
Ez is érdekelhet: Háromgyermekes család 92m2-es lakása – mentazöld konyhabútor, harmonikus, természetes színpaletta, minták, két gyerekszoba
A hálószoba kompozíciós központjává az ágy skarlátvörös kárpitozása vált, amelyet kék ágynemű egészít ki. A tulajdonosok kedvelik a malachitot, ezért ez a kő nemcsak természetes formájában van jelen a térben, hanem vázákon és lámpákon is visszaköszön. A festményeket hosszas keresgélés után választották ki, hogy azok színvilágukban harmonizáljanak az enteriőrrel, és szellemiségükben is illeszkedjenek a megrendelőkhöz.
Ez is érdekelhet: Több aktuális lakberendezési trend kétgyermekes család otthonában, 86m2
A régi, halszálka mintában lerakott parkettát megőrizték. A gyerekszoba kivételével minden falat komplex, tört árnyalatokra festettek. A gyerekszobában tengeri mintás tapétát használtak, valamint egy eredeti és funkcionális parafa falat is létrehoztak. Ez utóbbi a szoba kis lakójának alkotásait hivatott bemutatni. A gyerekszobában az alacsony ablakpárkánynak köszönhetően sikerült az íróasztalt az ablak szintjében, felesleges szintkülönbség nélkül kialakítani. A szobában a szekrény, az ágy és az asztal is kényelmesen elfért.
Ez is érdekelhet: Szép, modern enteriőr háromszobás lakásban – zöld, szürke, terrakotta és fa 92m2-en
A fürdőszobába egy kád és egy mosdóval ellátott szekrény került. A helyiség tágasabbá vált a beépített WC-tartály fölé helyezett háztartási szekrénynek köszönhetően. A teret továbbá vizuálisan is megnövelték azáltal, hogy a teljes falat tükörrel borították.
Ez is érdekelhet: Gyermekes család otthona természetes színekkel: háromszobás, 96m2-es lakás
további cikkek 50 és 100n2 közötti lakások lakberendezése témában | lakberendezés: Alesya Vusevics | fotók: Vitalina Voroskevics
























