Az 1962-ben épült, 46 m²-es társasházi lakás teljes felújítást kapott, a régi, elavult ingatlanból modern, ergonomikus és szellős otthont varázsolt a lakberendező. A felújítást egy édesapa rendelte meg, aki egyetemista lányának szánta a lakást születésnapi ajándékként. A megrendelői kérés egyértelmű volt: a tervezőnek egy sallangmentes, letisztult és egyszerű életteret kellett létrehoznia. Ennek megfelelően a koncepció a felesleges részletek elhagyására épült, így a kis alapterület ellenére a végeredmény tágas és könnyed hatást kelt. A szigorú, egyszerű alapokat a belsőépítész meleg fa textúrákkal, puha kárpitokkal és finoman adagolt, élénk dekorációs elemekkel tette otthonossá.
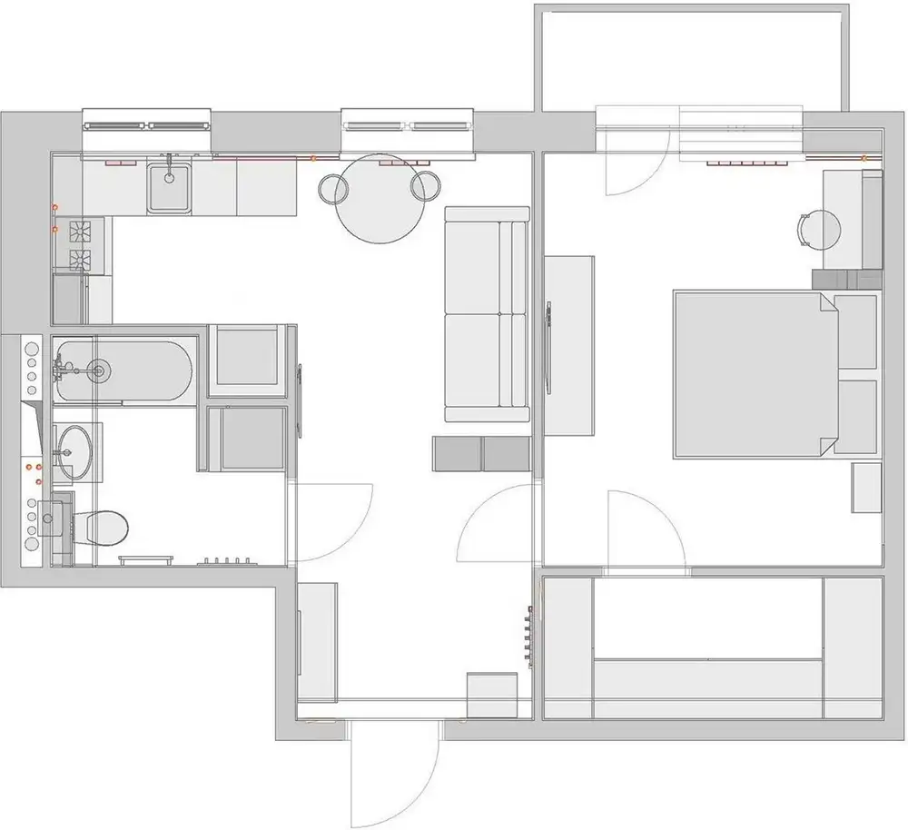
Eredeti állapot és az alaprajz átalakítása
A lakás a felújítás előtt siralmas állapotban volt, így a munkálatok egy átfogó, mindent érintő bontással kezdődtek. A régi burkolatok és az aljzat eltávolítása önmagában több mint két hétig tartott, mivel a régi esztrich alatt egy elavult aszfalt-kátrány keveréket találtak. A megbízói igények – különálló hálószoba, kényelmes dolgozósarok, tágas gardrób és egy fürdőkáddal felszerelt fürdőszoba – megvalósítása érdekében elengedhetetlen volt a terek teljes újraosztása. A konyhát, valamint a fürdőszobát a közlekedő rovására részben megnövelték, az új vizesblokk bejárata pedig az előszobába került. A fürdőszoba és a konyha végleges méretének kialakítása igazi centiméteres küzdelem volt, a tervek többszöri átrajzolását igényelte. Az előszoba és a nappalinak kijelölt szoba közötti válaszfalat elbontották, így egy tágasabb és fénnyel teli érkezési zóna jött létre. A nagyobbik szobát hálószobának jelölték ki, ahol egy praktikusan leválasztott gardróbhelyiséget is kialakítottak.
Előszoba
A lakásba lépve a válaszfalak elbontásának köszönhetően egy kifejezetten tágas, szabad tér fogad. A világosra festett falak – amelyek az egész lakásban egységes alapot adnak – és a praktikus, könnyen tisztítható padlócsempe letisztult alapot teremt. Az előszobát a nappali terétől egy nyitott polcos térelválasztó elem szeparálja el finoman, amely nemcsak vizuális határvonalat képez, hanem kiváló tárolórendszerként is funkcionál az apróságok számára. A mennyezeten végigfutó modern sínes lámparendszerek és a beépített spotlámpák gondoskodnak a megfelelő általános megvilágításról.
Konyha
A nappalival egybenyitott, és a korábbi folyosó irányába megnövelt konyha kompakt, de minden szükséges kényelmi funkcióval rendelkezik. A tervező szándékosan vizuálisan „feloldotta” a teret: a konyhaszekrények színe szinte teljesen megegyezik a világos falszínnel, így a bútorzat észrevétlenül simul bele a környezetébe. A padlót az előszobához hasonlóan kerámiaburkolat fedi. A folyosó beolvasztásával létrejött falfülke tökéletes helyet biztosít a hűtőszekrénynek, míg a mosogató ideális helyre, az ablak alá került – emiatt a felső szekrények csupán az egyik falon futnak végig. A sütőt és a mosogatógépet beépítették, a mikrohullámú sütőt pedig helytakarékos módon egy tartókonzolra rögzítették a munkafelület felett.
Nappali
A padlót itt – és a hálószobában is – meleg hatású laminált burkolat borítja. A visszafogott összképet a falakon futó fekete díszlécek törik meg, amelyek izgalmas, grafikus vonalvezetést adnak a térnek. A minimál stílust egy kényelmes, puha szövetkárpitozású, ággyá nyitható kanapé és az asztalosmunkák fa textúrái ellensúlyozzák. Bár a megrendelő alapvetően ellenezte a hagyományos függönyök használatát, a kompromisszumként kiválasztott, modern rolók kiválóan illeszkednek a kis térbe, anélkül, hogy vizuálisan nehézkessé tennék azt. Az élénk színű székek és az apró dekorációs tárgyak visznek életet a semleges palettába. Elegáns, apró belsőépítészeti összefüggés, hogy a nappali ablakpárkánya pontosan ugyanabból az anyagból készült, mint a konyhai munkalap. A tágasabb térérzetet egy hőszigetelt és beüvegezett erkély is tovább növeli.
Hálószoba és dolgozósarok
A korábbi nagyszobából kialakított hálószoba a lakás privát zónája. A világítást itt egy elegáns központi csillár, valamint a kiegészítő fényeket adó fali karok és állólámpák biztosítják. A nagyméretű, kényelmes franciaágy mellett a szoba legfontosabb eleme a leválasztott, önálló gardróbhelyiség, amely tökéletesen elrejti a fiatal lány teljes mindennapi és szezonális ruhatárát, feleslegessé téve a robusztus szekrényeket. Az apróbb ruhaneműk tárolására egy stílusos komód is helyet kapott. Az ablak mellett egy világos, jól felszerelt dolgozósarkot alakítottak ki, amelyet egy polcos állvány választ el a pihenőzónától. Az íróasztal feletti polcok bőséges helyet kínálnak a tankönyvek, füzetek és dokumentumok átlátható tárolására.
Fürdőszoba
A WC-vel egybenyitott és az előszoba felé megnövelt fürdőszoba minden centiméterét a maximális ergonómia jegyében tervezték meg. Az alaprajzi kötöttségek és a szigorú falmozgatási szabályok miatt egy kisebb, 150 centiméter hosszú fürdőkád kapott helyet, amely így is maradéktalanul teljesíti a megrendelői elvárásokat. A falakat tartós, nagyméretű greslap, a padlót pedig csempe fedi. A tárolás itt is kiemelt szerepet kapott: a mindennapi higiéniai cikkek a mosdó alatti szekrényben bújnak meg, de a fali WC beépítőkerete felett is kialakítottak egy zárt tárolót. Ezen felül egy egyedi beépített szekrény rejti a mosógépet, amely felett további praktikus polcok találhatók a tisztítószerek és a törölközők rendszerezéséhez.
további cikkek kis lakás berendezése témában | lakberendezés: Irina Dolganova | fotók: Andrey Mashkin



























