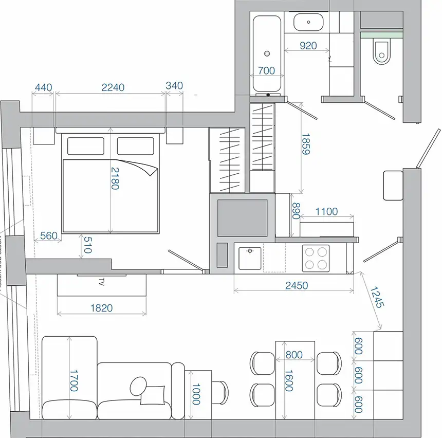
A tulajdonos fiatal nő egy 2010-ben épült társasházban vásárolta meg az ingatlant, az 51 m²-es lakást az előző tulajdonosok már a saját igényeik szerint átalakították. Az amerikai konyhás nappali, a különálló hálószoba, valamint a fürdőszoba és mellékhelyiség (külön helyiségekben) elosztása tökéletesen megfelelt számára, így az alaprajzon már nem módosítottak.
Mit kért a megrendelő?
- Világos enteriőrt.
- A bútorok optimális elrendezését és a funkcionális zónák elkülönítését.
- Átgondolt és praktikus tárolóhelyek kialakítását.
Előszoba
Az előszobában meglévő falfülkébe egy tágas, tükrös frontokkal ellátott beépített szekrényt helyeztek. A szekrényben külön helyet biztosítottak a szezonon kívüli ruháknak és a sportfelszereléseknek. A cipők és a kabátok számára egy nyitott fogas és egy cipőtároló polc is helyet kapott.
Amerikai konyhás nappali
Az enteriőr alapjául világos burkolatokat választottak, amelyek előtt látványosan érvényesülnek a megrendelő képgyűjteményének darabjai. A falakat mosható falfestékkel festették le, a padlóra pedig halszálka mintában lerakott kvarc-kompozit padlóburkolat került. A konyhai hátfalat csempével burkolták, melyet kontrasztos fugával emeltek ki.
A konyhabútor egyedileg, méretre készült. A főző zóna frontjaihoz egy lágy és meleg rózsaszín árnyalatot választottak. A fehér színű, mennyezetig érő magas szekrények kevésbé feltűnőek a világos fal előtt, így nem keltenek robusztus hatást. Minden háztartási gép – beleértve a hűtőszekrényt is – beépített, és még egy borhűtőnek is sikerült helyet találni. A konyhát és a nappalit az étkező zóna választja el egymástól, ahol egy téglalap alakú fa étkezőasztal és fémvázas, terrakotta színű székek kaptak helyet.
A pihenő zóna moduláris kanapéjának világos, kellemes tapintású kárpitozása szinte „feloldja” a nagyméretű bútort a térben, míg a modell trendi, lekerekített formái vonzzák a tekintetet és otthonos atmoszférát teremtenek.
A kanapé mögötti falat festmények díszítik. Az enteriőr színpalettájának kiválasztásakor a tervezőt épp az a művészet inspirálta, amelyet harmonikusan be kellett illeszteni a környezetbe. A képek másik felét már célzottan a bútorok és a burkolatok színeihez válogatták. A vintage kristálycsillárt a tervező a megrendelővel közösen választotta.
Hálószoba
A hálószoba burkolatai és színei megegyeznek a nappaliban látottakkal. A fő hangsúlyt itt a kárpitozott, telített mélykék színű ágy adja. A falon lévő festmény rímel az ágy árnyalatára. A fejtámla két oldalán vintage függőlámpákat helyeztek el, az ágy mellett pedig tükrös éjjeliszekrények állnak. A ruhák tárolását egy kisebb, nyílóajtós szekrény biztosítja.
Fürdőszoba és mellékhelyiség
A mellékhelyiség és a fürdőszoba burkolatait összehangolták: a nedves zónákban a falakat fehér csempével burkolták kontrasztos fugázással, míg a többi felületet mély terrakotta színre festették. Ugyanebben az árnyalatban készült a falra szerelt mosdószekrény is. A padlót és a kád oldalát fekete-fehér mintás csempével borították. A mosógépet egy tükrös frontú szekrény mögé rejtették, ami megváltoztatja a térérzetet, és vizuálisan tágítja a helyiséget.
további cikkek 50 és 100n2 közötti lakások lakberendezése témában | lakberendezés: Ekaterina Pashnina | fotók: Elizaveta Gurovskaya























