A tulajdonos, egy fiatal, a francia borok világában jártas hölgy, két maine coon macskájával osztja meg otthonát. A lakás egyszerre kellett a baráti borkóstolók vibráló helyszínéül és a pihenés békés szentélyéül szolgálnia. A dizájner feladata egy olyan könnyed, légies, mégis stabilitást sugárzó tér létrehozása volt, amely tökéletesen tükrözi a tulajdonos kifinomult, nyitott személyiségét.

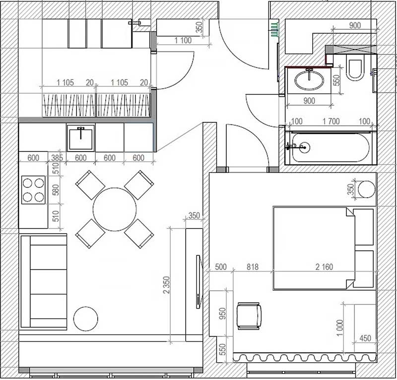
Az alaprajz újragondolása
A lakás elrendezése kétszobás, amely egy amerikai konyhás nappaliból és egy külön hálószobából áll. A tervezés kulcsfontosságú lépése volt a tárolási lehetőségek maximalizálása és a hálószoba tehermentesítése a nagyméretű szekrényektől. Ennek érdekében a nappali-konyha teréből, az ablaktól távol eső részen egy kompakt, de rendkívül funkcionális, 5 négyzetméteres gardróbszobát választottak le. Ez a megoldás nemcsak a ruhák és egyéb holmik tárolására biztosít helyet, de itt kapott helyet a mosó- és szárítógép, egy háztartási szekrény, valamint a tulajdonos munkájához elengedhetetlen borhűtő is.
Ez is érdekelhet: Letisztult fehér berendezés fiatal nő 49m2-es modern otthonában
Előszoba
A lakásba lépve egy gondosan megtervezett világítási koncepció fogadja az érkezőt. A fő mennyezeti fényforrásokat egy konzolasztal fölött elhelyezett, önmagában is műalkotásként ható fali lámpa és egy nagyméretű tükör diszkrét háttérvilágítása egészíti ki. Ez a rétegzett megoldás azonnal elegáns és hívogató atmoszférát teremt.
Ez is érdekelhet: 6 ötlet, amitől tökéletes lesz az előszobád
Konyha: rejtett funkcionalitás
A konyhabútort a bejárattól jobbra, egy sarokban helyezték el, így a térbe belépve szinte észrevétlen marad, és a nappali dominálja a látványt. A kompakt méret ellenére a funkcionalitás nem szenvedett csorbát: minden szükséges konyhagép beépítésre került, a mennyezetig érő szekrények pedig bőséges tárolókapacitást biztosítanak, letisztult és rendezett összképet nyújtva.
Ez is érdekelhet: 8 konyha – 8 ötlet profi lakberendezőktől, 7 m² területen
Nappali: a társasági élet központja
A 19 négyzetméteres nappali a lakás igazi szíve, amelynek kialakításánál elsődleges szempont volt a vendégek kényelmes leültetése. A tér ékköve az egyedileg tervezett ablak körüli zóna. A korábbi dupla üvegezés megszüntetésével egy rendkívül széles ablakpárkányt hoztak létre, amely egybefüggő felületet alkot a masszív TV-szekrénnyel. Ez a megoldás nemcsak esztétikus, de plusz ülőhelyként is funkcionál. A radiátor hőleadását a párkányon és az alatta lévő panelen kialakított diszkrét perforációk biztosítják; utóbbi mágnesekkel rögzül, így könnyen eltávolítható. A burkolatok a természetességet hangsúlyozzák: a padlón halszálka mintában lerakott svédpadló, a falakon finom díszlécek, az ablakok belső káváin pedig fa borítás teremtenek meleg, otthonos hangulatot, finoman idézve az öko-stílus jegyeit. A világításról a mennyezet peremén végigfutó lineáris lámpatest, az étkezőasztal fölötti dekoratív függeszték és a kanapé melletti falikarok gondoskodnak.
Ez is érdekelhet: Ötletek kanapé mögötti fal díszítéséhez, 15 tipp és technika példákkal
Hálószoba: nyugalom és pihenés
A hálószoba a béke és a pihenés tere, ahonnan a gardróbhelyiségnek köszönhetően száműzhették a nagyméretű bútorokat. Itt csupán egy kisebb íróasztal kapott helyet, amely a könyvek és iratok tárolására szolgál. A belsőépítészeti stílusok szimbiózisa itt a legszembetűnőbb: a neoklasszikus jegyeket viselő, hullámos díszlécek és mennyezeti párkányok lágyságot, míg a bútorok kortárs vonalvezetést képviselnek. A világítás egyszerre több hangulati réteget teremt: a központi, aranyozott csillár és az ágy melletti réz függesztékek a luxus érzetét keltik, a fekete asztali lámpa pedig határozott, grafikus elemet visz a térbe.
Ez is érdekelhet: Lenyűgöző hálószobafalak: 10 kreatív faldekoráció ötlet, amivel álomszobát varázsolhatsz!
Fürdőszoba: wellness hangulatban
A fürdőszobában a természetes hatású anyagok dominálnak: a falakon és a padlón a fehér márvány és a szürke pala textúráját idéző greslapok teremtenek spa-hangulatot. A tárolásról a mosdó alatti szekrény és a fali WC-tartály fölé épített szekrényke gondoskodik. A világítási koncepció itt is többrétegű: a spotlámpák, a tükör melletti függesztékek és a rejtett fények – a kád alatt és a polcoknál – lehetővé teszik, hogy a fényerő és a hangulat mindig az aktuális igényekhez igazodjon, legyen szó egy élénkítő reggeli készülődésről vagy egy pihentető esti fürdőről.
Ez is érdekelhet: Hogyan díszítsük, burkoljuk a fürdőkád mögötti falat? 8 mutatós ötlet lakberendezőktől
további cikkek kis lakás berendezése témában | lakberendezés: Marta Costa | fotók: Anton Likhtarovich





























