A gyermekek kirepülése utáni életszakasz új lehetőségeket nyitott egy középkorú házaspár számára: otthonukat teljesen a saját ízlésük és a kényelem jegyében formálhatták újjá. A 62 m²-es lakás enteriőrje a francia szállodák kifinomult világát ötvözi a funkcionális térszervezéssel, ahol a természetes fény útját a transzparens felületek és a gondos anyagválasztás kíséri végig.
A koncepció alapját a tulajdonosok franciaországi utazásai és az ott tapasztalt szállodai atmoszféra iránti vonzalmuk jelentette. A tervezési folyamat során a cél nem egy konkrét stílus merev másolása volt, hanem egy olyan hangulat megteremtése, amely a klasszikus polgári eleganciát modern, élhető formában integrálja a térbe.

Anyaghasználat és burkolatok
A padlóburkolatként választott, klasszikus halszálkás lerakási módban fektetett sötétebb tónusú parketta a francia nagypolgári lakások világát idézi. Ezzel kontrasztot alkotnak a falak világos, meleg, texturált felületei.
A konyhában a drámai hatást a munkapult és a hátfal anyaghasználata adja: az erőteljes erezetű, márványhatású burkolat domináns vizuális elemként jelenik meg. A konyhabútor kéttónusú: az alsó elemek fa frontjai a természetességet, míg a felső szekrények törtfehér felületei a légiességet képviselik. Az étkező központi eleme a kerek faasztal, amely körül a kárpitozott székek textúrája lágyítja a kőburkolatok hidegségét.
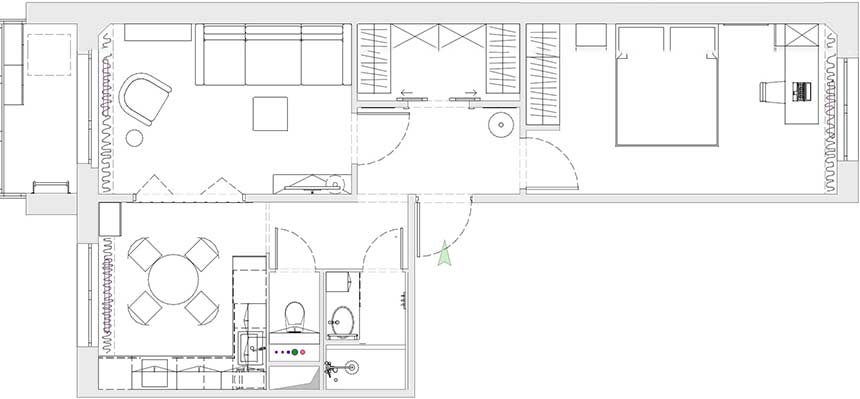
Térkapcsolatok és transzparencia
A lakás egyik legkarakteresebb eleme a nappali és a konyha-étkező közötti térkapcsolat kialakítása. A tervező itt a fix falak helyett fekete fémkeretes, bordázott üvegezésű, harmonikaszerűen nyíló térelválasztókat alkalmazott. Ez a megoldás kettős funkciót lát el: vizuálisan szeparálja a zónákat, ugyanakkor átengedi a fényt, megőrizve a tér tágasságának érzetét. A bordázott üveg textúrája finom torzítással intimitást ad, miközben a fekete keretezés határozott grafikai elemet visz a pasztell tónusú enteriőrbe.
Világítás és kiegészítők
A lakás tájolása kulcsszerepet játszott a tervezésben. A hálószoba a reggeli keleti fényt, míg a közösségi terek a délutáni és esti napsugarakat fogadják be. A mesterséges világításnál a hangsúlyos, gömb búrákkal ellátott csillárok és a falikarok nemcsak fényforrásként, hanem szoborszerű díszítőelemként is funkcionálnak. A kiegészítők – a vázák, a szőnyegek mintázata és a faliképek – a tulajdonosok személyes emlékeit integrálják az összképbe.
A hálószoba
A hálószoba kialakításánál a pihenés funkciója mellett a praktikum is nagy hangsúlyt kapott. Az egyedi asztalosmunkával készült beépített szekrényrendszer folytatásaként egy író- fésülködőasztal került kialakításra, amely az ablak előtti teret hasznosítja. A bútorlábak esztergált, klasszikus formavilága finom utalás a történelmi stílusokra, miközben a bútorok vonalvezetése modern marad.
A fürdőszobában a márványhatású burkolat folytatódik, amelyet a zuhanykabin íves, fekete fémkeretezése egészít ki, visszaköszönve a nappali térelválasztó elemeire.
további cikkek 50 és 100n2 közötti lakások lakberendezése témában | lakberendezés: Ekaterina Lankiewicz | fotók: Katya Samoilovich




























