A Belo Horizonte-i építész stúdió, a David Guerra Architecture And Interior tervezte a Casa do Sol házat egy többgyermekes családnak.

A Belo Horizonte-i építész stúdió, a David Guerra Architecture And Interior tervezte a Casa do Sol házat egy többgyermekes családnak.
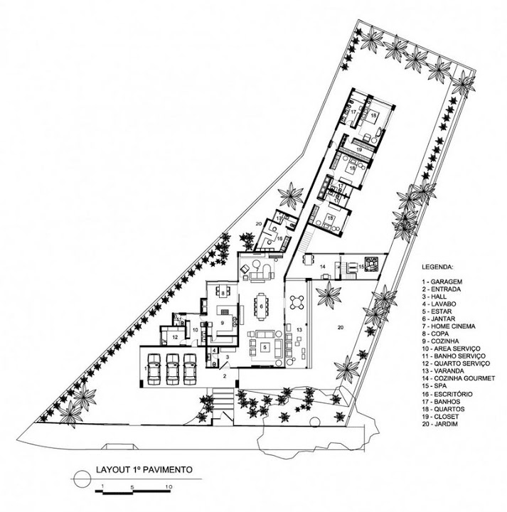
A 2011-ben elkészült egyszintes ház (hely: Belo Horizonte, Brazília) nem véletlenül kapta a nevét – egyszintes ugyan, de a ferde tetősíkok alatt a falak fölött extra nagy üvegfelületek öntik el a házat rengeteg természetes fénnyel – és gondoskodnak megfelő árnyékolásról a tágas teraszon.

David Guerra Architecture And Interior | Fotók: Jomar Bragança











































