A lakberendező saját lakásának átalakítását az ősi indiai Vastu tanításai alapján végezte el – a védikus építészet és térrendezés a tér helyes kialakítását célozza meg a természet törvényei szerint. A lakásban a helyiségek a megfelelő égtájakra néznek, a központi tér pedig szabadon maradt.
Természetesen a teljes Vastu szerinti tökéletességét nem sikerült elérni a lakásban, mivel a teljes megfelelés csak önálló házak építésénél valósulhat meg. Összességében az eredmény egy tudatosan megtervezett tér, amely a tervező szerint energiát ad a lakóknak és teljesíti a Vastu alaptanításait.

A közösségi médiában és az interneten manapság rengeteg felszínes, gyakran erősen torzított információ kering a Vásztu filozófiájáról, én viszont már régóta és nagyon alaposan tanulmányozom ezt a tudományt. A „vásztu” szó szanszkrit nyelven „teret” jelent, a „sásztra” pedig „útmutatást”. A Vásztu-sásztra egy ősi védikus tudomány a lakó- és munkaterületek helyes kialakításáról a természet törvényeivel összhangban. Ez a tudomány több mint tízezer éves hagyományra tekint vissza. Évezredeken át szóban adták tovább ezt a tudást mesterről tanítványra, majd körülbelül ötezer évvel ezelőtt leírták a Védákban. Napjainkig négy Véda maradt fenn, és a Vásztu különlegessége abban rejlik, hogy mind a négy Védában található róla információ.
– meséli a tervező.
Eredeti állapot és a tér átalakítása
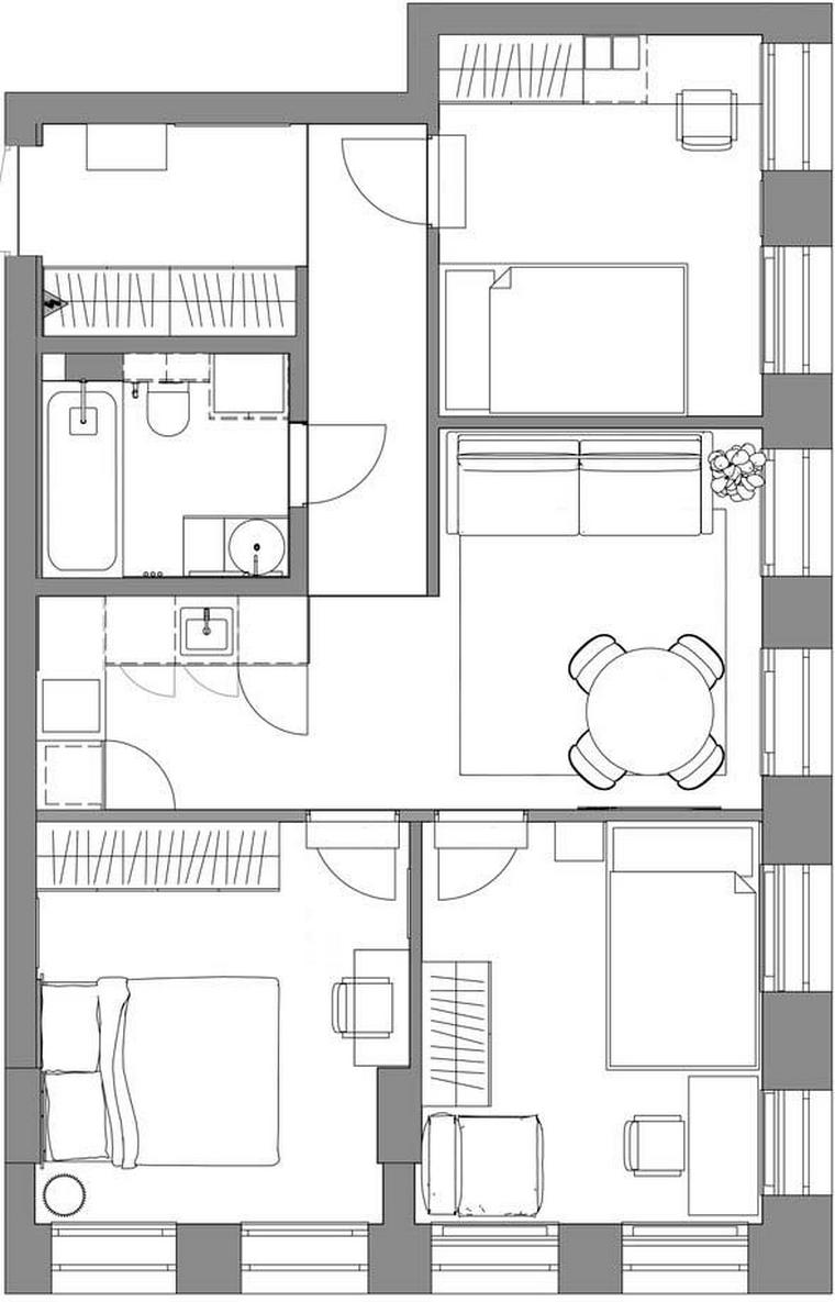
A lakás eredetileg szabványos kétszobás elosztással rendelkezett. A kezdeti adottságok megfeleltek a Vastu alapelveinek: megfelelő tájolás, téglalap alakú tér, WC az engedélyezett szektorokban (nyugat és északnyugat), a bejárati ajtó is kedvező helyre esett. Mivel nem voltak teherhordó falak, lehetséges volt három különálló hálószoba kialakítása. A lakás központi része, a Brahmasztán szabad maradt, megfelelve a Vastu követelményeinek.
Dekoráció és belsőépítészeti jellemzők
A lakás egészében vinyl, ásványi alapú (SPC) padlópadlóburkolat található, a falak egységes, világos színűek. Az ajtók rejtett kialakításúak, felületük kopásálló zománfestékkel készült. Az optikai térnövelést mennyezeti árnyékprofilok és különleges lábazati megoldások segítik.
Előszoba
Az előszoba tágas hatású lett a mennyezetig érő, beépített szekrénnyel, melyben külön hely van a takarítóeszközök tárolásához. A szemközti falra nagyméretű, padlótól induló tükröt szereltek, amely vizuálisan növeli a teret.
Konyha
A konyha eredeti helyén maradt, de kisebb alapterületű, nyitott, fülkeszerű megoldásként került kialakításra. Egyedi gyártású, sarokelrendezésű konyhabútor került beépítésre, rejtett fogantyúkkal és beépített háztartási gépekkel. A munkafelületet mesterséges kő borítja.
Nappali
A nappali egyik nagy előnye a két ablak, melyek sok természetes fényt engednek a térbe és a tér tagolását is segítik. A tévékészülék ultralapos, képernyője matt, többnyire képkeret-üzemmódban használják. Az ablakokat szépen emelik ki a radátorokat takaró, színezett nyírfurnér elemek és a fa reluxák.
Hálószoba
A fő hálószobában egyedi tervezésű ágy található puha bouclé szövet borítású fejvéggel és oldalsó, beépített hangulatvilágítással. A fal mellett nagy, beépített gardróbszekrényt alakítottak ki. Az ablak mellett minimalista stílusú stílusú polcos asztal található, amely munkahelyként és sminkasztalként egyaránt funkcionál. A tárolórendszerek egyedi tervezésűek, színben harmonizálnak a lakás falaival.
Gyerekszobák
A gyerekszobák hasonló funkcionalitásúak, ám a lány szobájában nagyobb kapacitású tárolórendszer került kialakításra, amely tartalmazza a gardróbot, az íróasztalt és a polcokat. Mindkét gyerekszoba kényelmes, 120 cm széles ággyal rendelkezik. A fiú szobájában ergonomikus számítógépes szék található.
A lakásban nagy figyelmet fordítottak a mikroklímára, központi szellőztetőrendszer és multisplit légkondicionáló rendszer biztosítja a megfelelő levegőminőséget.
Fürdőszoba
A fürdőszobában a fő feladat az volt, hogy a korlátozott területen elférjen minden szükséges: fürdőkád, mosdó alatti nagy tárolófelület, valamint szekrény a mosó- és szárítógépek számára, ennek érdekében áthelyezték a bejárati ajtót. A falakra és padlóra terrazzo mintájú greslapot választottak. A helyiségben hangulatos rejtett világítást építettek be, és minden csaptelep falba süllyesztett, könnyítve a tisztítást.
további cikkek 50 és 100n2 közötti lakások lakberendezése témában | lakberendezés: Olga Lyust | fotók: Natalia Gorbunova






































