Új építésű lakást vásárolt a fiatal informatikus pár, a kivitelező ötlettelen és gyenge minőségű befejező megoldásai miatt nemcsak a bútorok kiválasztásához kérték lakberendező segítségét, de a színek, burkolatok, dekoráció megtervezése is a szakember feladata lett a 60m²-es ingatlanban.

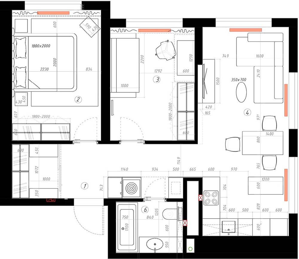
Alaprajzi megoldások:
- Az ingatlanfejlesztő által biztosított eredeti alaprajz nagyrészt változatlan maradt, csupán egy módosítás történt: a lodzsát a nappalihoz csatolták, így növelve annak alapterületét.
- Számos tárolóhelyet alakítottak ki, ezzel is csökkentve a vizuális zsúfoltságot. A lakásban három nagyméretű szekrény, valamint a folyosón egy komplett tárolórendszer kapott helyet.
- Az egyik helyiség multifunkcionális térként lett kialakítva. A dolgozószoba jelenleg a tulajdonos munkahelye, de bármikor könnyedén gyerekszobává alakítható komolyabb átalakítás nélkül.
Stílusbeli megoldások:
- A kivitelezési folyamat felgyorsítása érdekében kész bútorokat használtak. A komód, a gardróbszekrény, az ágy és a kanapé kereskedelmi forgalomban kapható darabok, nem egyedi gyártásból származnak.
- Az enteriőr karakterét terrakotta árnyalatú részletek alakítják, az inspirációt a megrendelők macskájának bundája adta.
- A konyha egyedi gyártású: különlegessége a gurulós mobil konyhasziget nyitott polcokkal az amerikai konyhák stílusában. Az alsó konyhaszekrények frontjai a munkalap széléhez illeszkednek.
- Külön figyelmet fordítottak a háziállat kényelmére is: a macskaalom, a fekhely és az etetőtálak számára integrált helyeket alakítottak ki, ezek diszkréten illeszkednek a lakás kialakításába.
Minden négyzetcentiméter hasznos funkciót lát el. Az előszoba és a közlekedő zónák különösen praktikusak: a bejáratnál egy ülőkés szekrény és egy nagy, tükörrel ellátott gardrób segíti a rendszerezést és tágítja optikailag a teret. A folyosón végighúzódó nagyméretű szekrény rejti a mosó- és szárítógépet, a takarító eszközöket, pót-ülőkéket és bőröndöket, valamint a macskaeledelt és az almot. Minden kéznél van, mégis rejtve marad.
Mivel a tulajdonosok gyakran főznek, a konyha alaposan átgondolt kialakítást kapott. A plusz előkészítő és tárolófelületként szolgáló, amerikai stílusú mobil konyhasziget nyitott polcokkal és fiókokkal a mindennapokban jól használható. Az egységes kerámia burkolat a padlón és a hátfalon vizuálisan is összehozza a tereket.
A nappali tervezésénél figyelembe vették, hogy a macska gyakran a gazdik közelében tartózkodik, a TV-zónában ezért falra szerelhető macskabútor és fekhely is helyet kapott.
Az egész enteriőr színvilágát a terrakotta árnyalatai uralják, ez a macska bundájából vett tónusokat idézi. A nappaliban minimálisra csökkentették a dekorációt, hogy a tér könnyed maradjon. A helyiség fő funkciója a pihenés és a tévézés.
A hálószoba (14 m²) teljes egészében előre gyártott elemekből áll, a franciaágy és az éjjeliszekrények lábakon állnak. Az ágy mögött egy kör alakú, terrakotta színű dekoráció került a falra, a végtelenség szimbólumaként. A szemközti falat kollázs-technikával készült fotótapéta díszíti, amely az enteriőr árnyalataiból építkezik.
A jelenlegi dolgozószoba a jövőben gyerekszobává alakul. A beépített bútorok már most is alkalmasak játékok és gyerekruhák tárolására. Jelenleg a szekrény kiegészítő ruhatárolóként funkcionál. Az állítható magasságú íróasztal lehetővé teszi az ülő vagy álló munkavégzést is. A szobában található összecsukható fotel átmenetileg vendégágyként szolgál, később pedig az édesanya pihenőhelye lehet.
A kis fürdőszoba mindössze 3,5 m², de élénk színvilága és praktikus megoldásai révén teljes értékű helyiséggé vált. A sárga falfestés és kontrasztos sárga fugázás vizuálisan élénkítik a teret. A melegített fal törölközőszárítóként működik, míg a mosdó alatti beépített szekrény elegendő tárolókapacitást biztosít a fürdőben.
további cikkek 50 és 100n2 közötti lakások lakberendezése témában | lakberendezés: Valentina Ivleva | fotók: Jurij Belmesov





























